Фото двухэтажных домов 8 на 8: планировки разных лет и их отличия
За последние годы строительная отрасль претерпела значительные изменения. Причем данные изменения коснулись не только технологий возведения зданий, оборудования, используемого на стройплощадках, и материалов. Изменился даже подход к разработке проектов, о чем свидетельствуют современные фото двухэтажных домов 8 на 8, планировки которых выглядят иначе, чем полвека назад.
Постепенно материалы современного поколения вытесняют такое привычное сырье, как древесина или кирпич. На рынках можно найти сайдинг, выполненный из пластика, он получил широкое применение в качестве обшивочного материала.
Общая информация
Почему в этом материале было принято решение рассмотреть проектирование дома именно размером 8х10? Все просто – именно этот вариант является одним из самых популярных, так как дома, построенные по таким проектам, отличаются компактностью, но при этом оказываются вместительными и удобными для проживания. Притом такие строения могут быть как одноэтажными, так и иметь второй этаж, мансарду, различные пристройки и так далее – все будет зависеть от пожеланий будущего владельца.

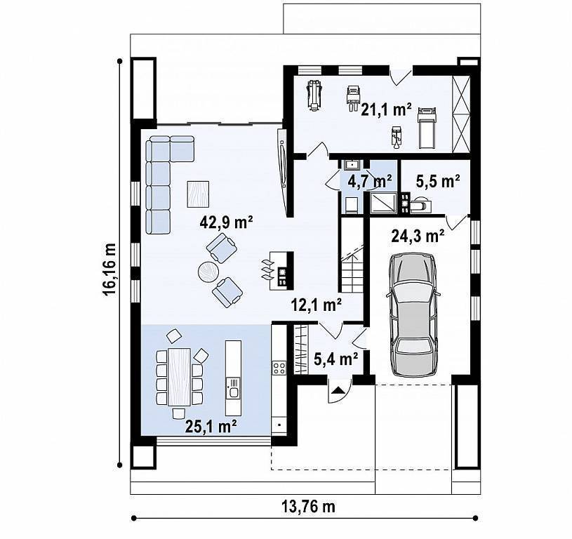
Проект дома 8х10 с отличной планировкой
Проект дома размером 8×10 м с мансардой
Многие, кто еще не сталкивался с проектированием и строительством, только лишь взглянув на дом 8х10, могут посчитать такой вариант жилища тесным и неуютным. Большинство, даже не разобравшись, могут сразу отмести этот вариант в сторону и остановиться на небольшом стандартном квадратном в проекции доме. И это будет в корне неверным решением. Прежде чем делать выводы относительно дома такого размера, стоит посетить подобные строения вживую и уже после этого решать, подойдет такой вариант или нет. Побывать в домах 8х10 можно на специальных выставочных площадках или же просто попросить соседей по участку, у кого есть такой дом, разрешить его посмотреть изнутри.
Жилой дом с мансардой размером 10 на 8 м позволяет комфортно разместиться семье из 4-5 человек
Кто-то может посчитать, что нет смысла делать прямоугольный дом, что будет достаточно и квадратного меньшей площади. Но на деле получается, что в доме 8х10 можно реализовать гораздо больше идей. Притом места такое строение на участке займет не так уж и много, так что это – один из лучших вариантов загородного жилья.
Планировка дома размера 8×10 м: пример дизайна
В доме 10х8 с полезной площадью 80 м2 прекрасно поместятся все необходимые помещения. Это и жилые комнаты, и кухня, и гостиная, и даже какие-то хозяйственные комнаты. Притом затраты на строительство такого дома будут гораздо меньше, чем при возведении большего по площади строения. Один этаж в таком доме будет представлять собой стандартную четырехкомнатную квартиру в многоквартирном доме. А если сделать дом двухэтажным, то площадь для проживания возрастет вдвое. Также не стоит забывать, что можно сделать балконы и лоджии, веранду и т. д, организовать цокольный этаж, сделать мансарду. Кстати, как раз все помещения хозяйственного назначения как раз могут переехать в цоколь, а в мансарде можно организовать просторную детскую комнату или уютную спальню. В любом случае, дом 8х10, хоть и не станет никогда огромным особняком, но вполне позволит разместить внутри себя столько комнат, что у каждого члена семьи будет свой личный уголок.
Дом 10 на 8 двухэтажный
Кстати, к преимуществам именно таких размеров дома можно отнести и то, что налог на собственность будет умеренным. Также не придется значительно усиливать конструкцию стен, что тоже позволит сэкономить средства.
Местоположение септика
Однако все эти планы по расположению кухни и санузла, не будут иметь ни малейшего смысла, если заранее не определиться с местоположением септика. Многие считают, что этот элемент инженерных систем должен находиться там, где его никто не видит. Вообще ход мыслей был бы правильным, если бы не одно но. Это но заключается в том, что септик – это ничто иное как накопитель отходов.

Отходы из накопителя нужно регулярно вывозить, для чего используется ассенизаторская машина. Поскольку это машина, для неё должен быть обеспечен свободный подъезд к септику.


Итак: фундамент с вмонтированной в него канализационной трубой заложен, септик вкопан, газобетонные блоки и песочно-цементная смесь закуплены и сложены рядом со стройплощадкой.

Самое время подумать о внутреннем разграничении пространства будущего дома. Ну, с кухней туалетом и ванной вроде бы определились. Хотя, если для ванной хватит и шести квадратных метров, для туалета будет достаточно двух, двух с половиной, то с кухней не всё так просто.

Особенности планировки
Отдельно стоящий дом в отличие от квартиры имеет свои особенности. Это касается и общих положений, которые необходимо учесть при строительстве, и зонирования помещения.
Общие принципы:
Нельзя с улицы сразу попадать в теплое помещение. Это приведет к увеличению затрат на отопление. Да и в холодное время года вторгшийся холодный воздух при открывании двери создаст неудобства. Чтобы такого не произошло, необходимо сделать тамбур. Причем лучше, если он будет частью основного дома, а не пристроен отдельным помещением. Если же вы планируете выделить часть пространства для крытой веранды, то тамбур не потребуется.

Для каждого члена семьи должно быть предусмотрено отдельное спальное место. Если это дачный домик, то можно разделить спальни на взрослые и детские (отдельно для мальчиков и отдельно для девочек).

Для размера дома 8х10 кв. м достаточно одного санузла и ванной комнаты. Совмещенными или отдельными они будут, зависит только от вашего желания. Альтернативой ванне может служить душевая кабинка, которая сэкономит место. Если жильё предполагается быть двухэтажным, то на втором ярусе тоже необходимо такое помещение.

Сборный дом каркасного типа
В отличие от описанного выше, этот вид строений можно ставить, как конструктор: собрав одну наружную стену, мастера переходят к другой, и так до завершения всей коробки. Несомненным плюсом является быстрота монтажа. В пользу каркасных домов говорит и наличие утепляющего слоя в СИП-панели. В качестве основания под сборный дачный домик 6х6 возводится упоминавшийся выше ленточный фундамент. Остается отметить, что все работы сможет выполнить практически любой домашний умелец, имеющий навыки обращения с молотком, дрелью и пилой.

Проект и оформление каркасного одноэтажного дома 6х6
Все, что потребуется для удачного завершения процесса постройки одноэтажного дома 6х6 м из сборных конструкций, — это наличие проекта.
Этап первый: эскиз
Работы начинаются с составления наброска будущего строения. Для этого от руки на обычной офисной бумаге делается рисунок. Опытные мастера советуют делать эскиз с участием всех членов семьи. Каждый человек сможет высказать свое мнение. В результате этого удастся построить дом мечты, где всем будет комфортно и приятно находиться. Рисуя свой будущий дачный домик 6х6 м, хозяин может создать множество вариантов компоновки помещений.

Их лучше не выбрасывать, а отложить в сторону и спустя время просмотреть заново. Вдруг какая-то из идей пригодится? Все черновики лучше сложить в отдельную папку, чтобы при необходимости их можно было достать и еще раз изучить. Тем, кто больше привык работать с планшетом, чем за письменным столом, можно переснять наброски и сохранить их в виде графических файлов.
Дома 6х8 по каркасной технологии
Каркасные дома 6х8 возводятся довольно быстро, обычно срок не превышает 1,5-2 месяца. Могут использоваться как для временного проживания, так и на постоянной основе.
Постройка каркасных домов имеет некоторые особенности, которые учитываются в процессе работы. Основой дома является легкий деревянный каркас, в большинстве случаев материалом отделки выступает сайдинг или вагонка.
Строительство выполняется в несколько этапов:
- разработка проекта;
- выбор строительных материалов, покупка и транспортировка;
- заливка фундамента;
- строительство стен, перекрытий, чернового пола;
- выполнение кровельных работ;
- вставка окон и дверей;
- отделка.
Достоинства двухэтажных домов
Строительство комфортного двухэтажного дома сегодня не так затратно, как полагают большинство потребителей. Конечно же, такой выбор обойдется не дешевле одноэтажного строения, но он того стоит. Выбрать можно уже готовый проект дома 2 этажа с планировкой или составить индивидуальный. Профессиональные архитекторы и дизайнеры с удовольствием помогут вам воплотить мечты о загородном двухэтажном доме в реальность, предложат актуальные и соответствующие вашему бюджету решения.

План современного двухэтажного домаИсточник bawim.desany.ru.net
Основные преимущества загородного двухэтажного дома:
- Рациональное использование земельного участка. Если вам достался совсем небольшой земельный надел в черте города или за ее пределами, естественно, вы захотите обустроить его с максимальной пользой, чтобы работал каждый квадратный метр. Зачем занимать ценную полезную площадь приземистым одноэтажным домом? Лучше распределить те же помещения на двух этажах, а на участке оборудовать сад и зону отдыха с беседкой и мангалом.
- Высокий уровень комфорта. Два этажа позволяют очень четко зонировать помещения, в которых спят и отдыхают, от так называемых общих и рабочих комнат. Традиционно спальни и кабинеты размещаются на втором этаже, а гостиная, столовая, кухня, игровая – на первом. Таким образом, в одном доме смогут со всеми удобствами жить несколько поколений семьи с разными распорядками дня и интересами.

План просторного двухэтажного домаИсточник derevyannyydom.com
Надежная и простая конструкция. Некоторые решают сэкономить на проекте двухэтажного дома и подыскивают альтернативный вариант с мансардой. На самом деле это вовсе не дешевле, а иногда даже дороже. Ведь правильно спроектировать и выстроить конструкции со скошенной кровлей, грамотно подвести все коммуникации на мансарду, утеплить ее, сделать комфортной и безопасной для проживания в действительности намного хлопотнее, чем проделать все те же работы при проектировании дома в полноценных два этажа. Если вам нужны дополнительные полезные метры жилплощади, имеет смысл сразу же выбирать двухэтажный дом, а не постройку с мансардой.
Итак, красивые двухэтажные дома – это идеальный баланс между полезной площадью и затратами на создание проекта и строительство, эстетичность и комфорт, необходимое личное пространство для каждого из членов семьи, но без излишеств. Обеспечить такие характеристики вполне возможно – если проект разрабатывается специалистами, которые прекрасно осведомлены обо всех тонкостях строительного процесса.

План большого двухэтажного дома с открытой террасойИсточник cottages.nsk.ru
Реально ли создать планировку полностью «под себя»?
Если вы покупаете построенный объект — увы, нет. Если дом построен даже без стен, в его проекте уже заложено расположение коммуникаций, окон, дверных проемов, зонирование и т. д.
Если вас это не устраивает, вы можете заняться строительством своего коттеджа самостоятельно. Благо, в пригородах Москвы, сегодня продается много привлекательных земельных участков, в том числе, на территории благоустроенных коттеджных поселков. Приобретение земли без недвижимости обойдется вам дешевле и даст неограниченное количество вариантов для возведения жилья по своему вкусу.

Самостоятельное строительство позволит вам выбрать стройматериалы и варианты отделки по собственному усмотрению. Вам не нужно будет ограничиваться требованиями по части внешнего вида фасада и габаритов жилья. Собственник может изначально выбрать уникальную стилистику, например:
- построить дом-шале;
- одноэтажный коттедж с панорамным остеклением;
- или наоборот двухэтажный со вторым светом;
- возвести каменный замок и др.
На этапе реализации собственного проекта, важно заручиться поддержкой опытного архитектора и дизайнера. Специалисты помогут избежать всех подводных камней, связанных с практической стороной воплощения всех ваших идей. Это позволит вам, впоследствии, по-настоящему наслаждаться проживанием в доме, и не сталкиваться с непредусмотренными мелочами и неудобной планировкой, площадью комнат
Это позволит вам, впоследствии, по-настоящему наслаждаться проживанием в доме, и не сталкиваться с непредусмотренными мелочами и неудобной планировкой, площадью комнат.

Обойтись без всей волокиты поможет услуга по строительству под ключ. Она минимизирует нахождение собственника на строительной площадке. Вы получаете уже готовый результат, согласованный с вами на всех этапах.
Особенности планировки дома
Грамотная планировка дома 8х8 предполагает обустройство 1-2 спален, гостиной, и ванной комнаты. Площади хватит для обустройства просторной кухни, позволяющей разместить барную стойку.
Даже если дом одноэтажный, его площадь получится 64 м2, что сравнимо с 2-х или 3-комнатной квартирой. Это бюджетный и удачный вариант для строительства индивидуального жилья.
Желательно делать проект дома 8 на 8 со 2-м этажом. Это позволит значительно расширить жилую площадь. Естественно это влечет дополнительные затраты.
Поэтому если на текущем этапе не планируется сооружение 2-го этажа, нужно предусмотреть возможность его возведения в будущем. Следует сделать максимально прочный и надежный фундамент, способный выдержать не только 2, а и 3 этажа.
На фото дома 8 на 8 можно наглядно ознакомиться с вариантами планировки, объектами на 1, 2 и даже 3 этажа. Зачастую строят 2-этажные дома. На 1-м этаже обычно обустраивают прихожую, зал, санузел и кухню. На 2-м этаже можно обустроить 4 полноценные спальни. Можно сделать 3 спальни и еще один санузел.
Оптимальные размеры двухэтажного дома
Оптимальным минимальным пятном застройки считается прямоугольник 7х8 метров или квадрат 8х8.

Проект двухэтажного коттеджа 8х8 с террасой и балконом
Именно такие размеры позволяют построить небольшой дачный дом, где будут рационально расположены комнаты, удобно встанет полноценная лестница, а не чердачка, а также останется место не только для кухни, гостиной и хозяйских спален наверху, но и гостям будет, где разместиться.
При меньшем основании строение также может существовать, но тогда планировка двухэтажного дома будет неудобной и нефункциональной. Гостиная превратится в проходную комнату, большую часть полезной площади съест лестница, а наверху, при условии, что строиться будет не полноценный этаж, а мансардный, поместится только одна спальня.
площади дома до 200 квадратных метров
Проект дома 8х10
Размеры значительно расширяют возможности удобной планировки внутренних помещений, пространство позволяет размещать помимо необходимых жилых помещений еще и подсобные (кладовые, гардеробные). Например, это возможно в доме с пристроенным к нему гаражом, верандой или террасой (открытого или закрытого типа), мансардой.
Чтобы проект дома 8х10 был с отличной планировкой, нужно учесть потребности каждого члена семьи
Например, для детей требуются просторные помещения с достаточным освещением, для родителей – уютная комфортабельная спальня, хозяйке важно удобное пространство для кухни, хозяину — место для машины или для отдыха в гостиной. Прежде чем получить дом своей мечты, необходимо рассмотреть популярные варианты, выбрав для себя идеально подходящий. Для возведения используется самый различный материал (кирпичи, пеноблоки, древесину, камень, шлакоблоки)
Для возведения используется самый различный материал (кирпичи, пеноблоки, древесину, камень, шлакоблоки)
Для дома из древесины понадобятся качественные оцилиндрованные бревна 8 на 10 с диаметром от 200 до 300 мм, чаще всего они изготовлены из хвойных пород. Такие дома-срубы имеют очень привлекательный внешний вид, они экологичны, безопасны для проживания, прочны и долговечны (70-100 лет). Главное достоинство – наличие естественного воздухообмена, дерево «дышит», доставляет в ваш просторный дом кислород
Для возведения используется самый различный материал (кирпичи, пеноблоки, древесину, камень, шлакоблоки). Для дома из древесины понадобятся качественные оцилиндрованные бревна 8 на 10 с диаметром от 200 до 300 мм, чаще всего они изготовлены из хвойных пород. Такие дома-срубы имеют очень привлекательный внешний вид, они экологичны, безопасны для проживания, прочны и долговечны (70-100 лет). Главное достоинство – наличие естественного воздухообмена, дерево «дышит», доставляет в ваш просторный дом кислород.
Принципы расположения комнат
Планировка комнат в частном доме определяет уровень комфорта. Вне зависимости от количества этажей, условно особняк делят на две зоны: дневную и ночную или отдыха. Посмотреть варианты можно на фото планировки домов.
К дневной части проекта относятся:
- кухня;
- столовая;
- зал.
В нее проектировщики иногда включают террасу и веранду, куда переносится отдых в теплое время года. Здесь же располагается туалет и ванная.
В зоне для ночного отдыха находятся:
- спальни;
- детская;
- гардеробная;
- ванная с туалетом.
По этому принципу разработаны типовые планировки одно- и двухэтажных домов. Первый этаж используют для активного времяпрепровождения всей семьей. Под ночное время отводят второй. Если в семье есть люди с ограниченными двигательными возможностями или преклонного возраста, в проекте первого этажа выделяют место под спальню и строят дополнительный туалет с душем. Такая планировка считается удобной, позволяет полноценно отдыхать и одновременно принимать гостей.
Существует мнение, что спальни лучше ориентировать на южные стороны дома. Такая планировка позволит наполнить помещения достаточным количеством солнечного света. Недостаток в том, что в летнее время комнаты будут нуждаться в кондиционировании, это достигается установкой бытовых приборов и их работой в постоянном режиме.
Идеи планировки двухэтажного дома
Определить конструкторские решения будущего коттеджа с первого раза удаётся не всегда. В большинстве случаев на это уходит много времени, так как разработка планировки двухэтажного дома имеет много особенностей, которые должны учитываться с предпочтениями каждого проживающего. Сделать это можно самостоятельно или обратиться к услугам специалистов. В качестве примера представляем несколько оригинальных идей.
Проект № 1
- Общая площадь: 170,7 м2.
- Жилая площадь: 70 м2.
- Площадь первого этажа: 92 м».
- Площадь второго этажа: 17,7 м2.
- Размер дома: 9,9*15,5 м.
Проект двухэтажного дома площадью более 150 м2Источник innstroy.ru
Лаконичный коттедж эконом-класса, укомплектованный всем необходимым для комфортного проживания семьи из четырёх человек. Планировка первого этажа показывает наличие просторной гостиной, расположенной в заднем крыле дома. Помещение объединено с кухонной рабочей зоной и столовой. Строгая прямоугольная форма станет причиной зонирования большого зала на несколько частей. Делать это придётся внутренними элементами отделки (обоями, кафелем, мебелью). Небольшое пространство совмещённого санузла (4,4 м2) станет проблемой для монтажа ванной. Владелец будет вынужден решать между душевой кабинкой или уголком.
Проблема первого этажа решается благодаря увеличившемуся санузлу на втором. На 5,8 м2 уже удастся разместить небольшую ванную и остальную сантехнику. Оригинальным может показаться решение второго кабинета с аналогичными характеристиками. Вы скажете, – «Для чего на втором этаже 2 туалета!». Ответ очевиден – дети. Они растут по одному принципу: захотел один, побежал и второй. Поэтому на данном примере планировки эта проблема устранена.
3 спальни могут использоваться для членов семьи, оставшаяся внизу – в качестве гостевой. Бросающимся в глаза недостатком является отсутствие кладовой или гардеробной.
Проект № 2
Проект двухэтажного дома площадью более 150 м2Источник www.faulaconstruction.com
Проект первого этажа дома площадью более 200 м2Источник drevkostroy.ru
- Общая площадь: 236,38 м2.
- Жилая площадь:212,69 м2.
- Площадь первого этажа: 141,4 м2.
- Площадь второго этажа: 95,3 м2.
Оригинальный, а самое главное – стильный и современный дом, относящийся к стилю хай-тек. Огромные, во всю стену, панорамные окна, зал для занятия тяжёлой атлетикой или фитнесом на первом этаже. Преимущества планировки двухэтажного дома в следующем:
- Наличие просторной общей зоны, образованной объединением гостиной, столовой и кухни.
- Дополнение первого этажа спортзалом.
- Классная веранда на втором.
- Сближающие с природой панорамные окна, через которые отлично просматривается ухоженный ландшафт участка.
- Отдельный вход в санузел из главной спальной второго этажа.
Такая планировка нацелена на людей, предпочитающих современный стиль, спортивный образ жизни и не принимающих старую добрую классику.
Проект № 3
Проект двухэтажного дома площадью более 250 м2Источник demo2.sbsite.ru
- Общая площадь: 287,8 м2.
- Жилая площадь: 95 м2.
- Площадь первого этажа: 118,7 м2.
- Площадь второго этажа: 111 м2.
Дом в классическом стиле с отдельной котельной, поделённой кухней, раздельным санузлом, большой террасой и спальней на первом этаже. Последнюю, при необходимости, можно использовать как гостевую. Благодаря наличию всего этого, планировка предстаёт в индивидуальном стиле и подойдёт для утончённых, любящих оригинальность людей.
Уникальность и отличие заканчиваются после подъёма по лестнице. Второй этаж коттеджа предстаёт в стандартном виде:
- Несколько спален.
- Санузел.
- Гардеробная.
Проект № 4
Проект двухэтажного дома площадью 182 м2Источник myhome.nifty.com
- Общая площадь: 182,1 м2.
- Жилая площадь: 53 м2.
- Площадь первого этажа: 95,9 м2.
- Площадь второго этажа: 87,2 м2.
Дом со вторым этажом мансардного типа, построенный в стиле шале. Планировка просторного первого этажа полностью отдана под так называемые нежилые помещения и гостиную, площадью 26,78 м2. На входе гостей встречает небольшая прихожая с дверью в кладовую, чуть дальше санузел и рабочий кабинет главы семейства. В отсутствии необходимости такого помещения допускается перепланировка под другие цели, например, детская игровая комната, просторная гардеробная или что-то иное.
Хотя кухня и гостиная размещены в одном большом зале, разделение происходит благодаря зонированию внутренней отделкой и небольшому «притоплению» в заднее крыло дома. Здесь же выход на террасу.
Второй этаж дома спроектирован по классическому принципу: 3 спальни, коридор с лестницей в центре и просторный санузел.
Площадь дома
Габариты дома подбирают с учетом количества проживающих и предполагаемого уровня комфортности дома. Единых норм нет, размеры определяют ориентировочно. В проекте на одного человека выделяют от 28 до 30 кв. м. Для семьи из 4 человек подойдет проект дома 10х10 с отличной планировкой.
При выборе размеров и площади дома останавливаются на следующих вариантах:
- Размеры 4 на 4 м больше подходят для проекта дачного домика временного проживания.
- Площадь небольшого дома – 5 на 8, 6х6, 6 на 7, 6х8 – рассчитана на проживание маленькой семьи. Если домовладельцев более 3 человек, достраивают второй этаж, в проекте предусматривают летнюю кухню, веранду.
Дом 6х7
При площади дома 80 кв. м и наличии мансарды или второго этажа вполне комфортно сможет проживать среднестатистическая семья. В планировке достаточно места для просторной гостиной, спален и кабинета. Примеры таких строений: дома 7 на 10, 8х10,8 на 9, 7 на 9 м.

Дом 8х9
Одноэтажные дома с размерами 6х10,5 на 10 относятся к небольшим. Такие здания выбирают для узких участков. Если предусмотрен второй этаж, здесь с удобствами сможет разместиться семья из 4–5 человек.

Дом 6х10
Планировка дома 10 на 12 площадью более 100 кв. мпозволяет разместить несколько комфортных спален, просторную гостиную и кабинет. Эти характеристики относятся к зданиям следующих габаритов: дома 10х12,9 на 12, 9 на 10, 11 на 11, 8 на 12, 8 на 14 м.
Проект 10х12
Для особняков свыше 120 кв. м и габаритов: 13 на 13, 13 на 10, 15 на 15, 14 на 14 проектировщик может разработать проект большого дома повышенной комфортности. Получится разместить несколько спален с индивидуальными гардеробными и санузлами. В планировке достаточно места отводится для детской, кабинета, гостиной и просторной кухни с дополнительной кладовкой.
Внутреннее пространство разделяют следующим образом:
- для спальни – 10–20 кв. м;
- под санузел, ванную, гардеробные, служебные помещения отводят 3–10 кв. м,
- под кабинеты, игровые потребуется не менее 10 кв. м.
Все варианты представлены на фото частных домов
Что необходимо учитывать при составлении схемы дома
Уже на этапе составления эскиза нужно четко определиться с количеством этажей, типом кровли, внешним видом фасада и фронтальных частей дома, вплоть до количества окон, балконов, наличия террасы или мансарды. Эскизный проект также предполагает наброски вида здания в продольном и поперечном разрезах, где указываются особенности конструкции и материалы, из которых предполагается возводить дом.
Пример чертежа одноэтажного дома из кирпича с мансардным этажом.На заметку! Опытные проектировщики не советуют делать очень просторными спальные комнаты, так как большие помещения могут способствовать формированию чувства тревоги у их обитателей. Поэтому спальни должны быть компактными и уютными.
Перед тем как нарисовать план дома, необходимо определиться с расположением участка и изучить ориентацию относительно сторон света. Исходя из этих данных, определяется месторасположение комнат. Их количество зависит от того, сколько людей будет жить в здании и как часто будут приезжать гости на длительное время. Размещение помещений и функциональное предназначение каждого из них также является важным элементом.
Проекты дачных домов: описание конструктивных особенностей (прочитать подробнее)
Далее требуется определить, какие конкретно комнаты будут отведены членам семьи, а какие – гостям и работникам, если предполагается формирование определенного штата. Не следует забывать о планировке помещений, в которых будет собираться вся семья, – это столовая, зал или гостиная.
Важно учесть предпочтения и увлечения обитателей дома, чтобы выяснить необходимость включения в планировку тренажерного зала, бассейна или сауны, зимнего сада либо оранжереи, библиотеки с кабинетом или просторной мастерской. При составление эскизного проекта дома нужно учитывать все пожелания будущих жильцов
При составление эскизного проекта дома нужно учитывать все пожелания будущих жильцов
При составление эскизного проекта дома нужно учитывать все пожелания будущих жильцов.
Популярные планировки
Рассмотрим один из самых распространенных вариантов. Планировка одноэтажного дома 8 на 8 м для семьи с двумя детьми включает в себя зал, две спальни, холл, кухню и ванную, как показано на фото. В общей сложности по площади это будет эквивалентно трехкомнатной городской квартире. Дом на участке рационально разместить таким образом, чтобы окна детской комнаты выходили на запад, а спальни родителей – на север. Окнами на юг лучше разместить гостиную, а ванная и кухня будут смотреть на восток.

Полезный метраж распределяется таким образом:
- спальня родителей – 12 кв.м.;
- комната детей – 18 кв.м.;
- гостиная – 20 кв.м.;
- на кухню, ванную, прихожую отводится приблизительно 14 кв.м.
Холл находится в центре дома и является проходным: в него выходят все двери, включая санузел и кухню.

Проектировщики предлагают другой вариант планировки одноэтажного дома 8 на 8 с таким же количеством комнат, но с террасой. Практически одинаковые по площади спальни находятся на одной линии с кухней. Напротив спален, через коридор, располагаются ванная комната, техническое помещение (гардероб, котел, кладовка) и тамбур, которые имеют общую стену с террасой. Напротив кухни – просторная гостиная с выходом на террасу.

Площади помещений при таком планировании распределяются так:
- спальни – 6,2 и 6,5 кв.м;
- кухня – 10,5 кв.м;
- ванная комната – 3,6 кв.м;
- техническое помещение – 2,6 кв.м;
- тамбур – 1,8 кв.м, имеет выход на террасу;
- гостиная – 18,7 кв.м;
- терраса – 8,7 кв.м.

Не менее популярен проект одноэтажного дома 8 на 8 с гаражом. Он предусматривает несколько выходов из дома, что делает более удобными все перемещения: на террасу, в сад, на улицу, в гараж. Планировка такого дома предусматривает две спальни и санузел между ними. Дверь в ванную – из гостиной, задняя дверь на улицу – также из гостиной.

Экономическая выгода такого варианта заключается в том, что при одинаковой затрате средств на строительство и на кровлю в итоге получается более просторное жилье. Если средства позволяют, то можно построить двухэтажный дом 8 на 8 – в нем каждому члену семьи будет достаточно личного пространства.

Строительство дома чаще ведется по стандартному плану:
- первый этаж – тамбур, холл, санузел, гостиная (18,2 кв.м) и кухня (10 кв.м);
- второй этаж – три спальни разной площади (8,2 кв.м, 8,3 кв.м, 13,6 кв.м), холл и балкон над крыльцом (4 кв.м).
Пространство под лестницей можно использовать с пользой, устроив там гардеробную.

Проекты домов 8х8
Дом 8 на 8 (планировка, фото прилагаются) — это отличный вариант для семей со средним бюджетом. В таких строениях не возникнут проблемы с системой отопления и кондиционирования, а значит, при эксплуатации они будут экономичны и эргономичны.
Несмотря на небольшую площадь, дом 8 на 8, планировка которого может быть любой, является полноценным жильем и содержит в плане все необходимые помещения. Здания могут быть возведены из бруса, бревна, пеноблоков или камня. По желанию заказчика можно запроектировать общий экстерьер дома, индивидуальный размер и форму дверей и окон, а также их количество.
Чаще всего возводятся одноэтажные строения, но не менее популярны варианты таких домов с двумя этажами или с мансардой.






























