Планирование
Необходимо учитывать розу ветров
Почему это важно? Террасы используют для отдыха. Если разместить ее со стороны преобладающих ветров, то комфортное время препровождения сложно обеспечить
Рационально располагать со стороны внутреннего дворика. Проще организовать комфортное пространственное объединение с местом отдыха на улице, с зоной барбекю, бассейном, детской площадкой, дорожкой к беседке, с видом на альпийскую горку или красивый цветник.
Идеальное место — это внутренний дворик, что защищает от ветров
Выход лучше организовать из столовой или гостиной. Не стоит объединять террасу со спальнями. Открытая площадка располагается с противоположной стороны от основного входа. Владельцам маленьких участков нужно организовать живую изгородь или другое декорирование. Это поможет спрятать свою жизнь от посторонних глаз соседей.
Уютно отдыхать на открытом воздухе возле огня
Расположение по сторонам света
Планировка зависит от собственных предпочтений, ритмики жизни, окружающего ландшафта и участка:
- Для любителей любоваться заходом солнца – западная часть станет идеальной. Солнце освещает площадку после обеда.
- Восточное расположение дает свое преимущество – утренние лучи солнца способствуют бодрому подъему и подготовке к грядущему дню.
- Северная часть гарантирует мягкий рассеянный свет и террасу хорошо совмещать с мастерскими, столовыми комнатами. В этом случае не стоит рядом высаживать высокие растения: деревья, вьющиеся кусты и вьющиеся цветы.
- Южная – максимально обеспечивает солнцем. В течение лета необходимы тенты или навесы, чтобы снизить воздействие палящих лучей.
Учитывайте свои предпочтения при планировке
Благодаря тщательному планированию дом и терраса становится удобным местом отдыха и долго служит владельцам. Не требуют частых капитальных и обслуживающих ремонтов.
Что следует предусмотреть: особенности возведения
Террасу нельзя возводить на грунте без фундамента. Чтобы в процессе эксплуатации не возникали проблемы: кровля не деформировалась, не лопалась, пол оставался горизонтальным, необходим надежный фундамент. Он заливается или сооружается одновременно с основным зданием, это гарантирует безопасность.
Обязательно сделайте фундамент под конструкцию
Сооружение не требует больших вложений. Работы производятся быстро. Можно без сложной строительной техники (экскаватора, автокрана). Не используются сложные методы строительства: монтаж на высоте, утепление.
Сооружение не затратное и при этом добавит уюта вашему дому
Если не выполнить это условие, даже открытая веранда начнет отходить: атмосферные осадки попадают под фундамент основного строения, зимой мороз делает свое дело: разрывает раствор, начинает ржаветь арматура. Со временем все строение может деформироваться.
Назначение балкона
Для начала нужно определиться, нужен ли он вообще и в каких целях его будут использовать. Балкон, в отличие от лоджии, открыт с трех сторон, что усложняет его эксплуатацию в холодное время года, а также во время дождя или сильного ветра. То есть при нашем климате использовать его можно будет только летом при хорошей погоде, максимум в теплые дни межсезонья. Открытая конструкция будет промокать во время дождя, накапливать снег, промерзать при минусовой температуре, так что для нее нужно использовать соответствующие влагостойкие и морозоустойчивые материалы. Незастекленные балконы смотрятся со стороны более выигрышно, особенно если они украшены ковкой, резьбой по дереву или красиво выложены плиткой, застекленные же можно использовать круглый год, особенно если их дополнительно утеплить, правда, их внешний вид более грубый и непрезентабельный.
Модная тенденция утепления фасада дома
Выбор подходящих теплоизоляционных материалов для оформления фасада является одним из наиболее важных решений, поскольку энергоэффективность здания и комфорт его обитателей будут в значительной степени зависеть от этого выбора.
Рекомендации по выбору лучшей теплоизоляции фасадов:
- Высокая теплопроводность.
- Большая толщина теплоизоляционного слоя.
При термоизоляции внешних фасадов используют систему изолирующих панелей со штукатуркой, стекловолокно, минеральную вату, керамзит, базальтовое волокно, вспененные полиэтилен, пенопласт, экструдированный пенополистирол или полиуретановую пену.
Стильный современный домИсточник noviydom.com.ua
Разберем эти материалы более подробно.
Керамзит. По некоторым параметрам лучше, чем использование пенобетона в качестве утеплителя. Его преимущества:
- Низкая стоимость.
- Долговечность.
- Устойчивость к кислотам.
- Не вступает в химические реакции с другими веществами.
Недостатки:
- Очень долго сохнет после нанесения.
- При работе с керамзитом образуется много пыли.
Стекловата. Преимущества использования:
- Хорошие теплоизоляционные свойства.
- Отлично защищает дом от внешних шумов.
- Не подвержена уничтожению микроорганизмами.
- Не несет угрозы здоровью.
- Бюджетный вариант.
- Мало весит и не нагружает несущие конструкции.
Недостатки при использовании:
Вата из стекловолокна поглощает воду, вследствии этого теряет все свои свойства. Поэтому требуется дополнительная гидроизоляция.
Яркий фасад с подсветкойИсточник elledecoration.ru
- Требуется специальное оборудование при установке, так как при попадании на кожу вызывают зуд и жжение.
- Теряет свои свойства после десяти лет службы.
Базальтовое волокно. Плюсы его использования:
- Безопасен при работе для окружающей среды и человека.
- Материал экологичен.
- Высокие показатели теплопроводности.
- Прослужит до пятидесяти лет.
- Не является горючим материалом.
- Хорошо поглощает шумы и вибрации.
Минусы его использования:
Самый дорогой среди утепляющих материалов. Может иметь в составе формальдегид
Поэтому следует обратить на это внимание при покупке.. Вспененный полиэтилен. Плюсы его использования:
Плюсы его использования:
Вспененный полиэтилен. Плюсы его использования:
- Материал универсальный. Его можно будет использовать для изоляции других поверхностей.
- Маленький вес.
- Высокие показатели теплопроводности.
- Экологичен. В процессе горения не выделяет вредные вещества.
- Длительный период службы.
- Не является горючим материалом.
- Хорошо поглощает шумы и вибрации, если его толщина стартует от 5 мм и более.
Минусы его использования:
Быстро воспламеняется.
Пенопласт. Плюсы его использования:
- Легкий.
- Можно использовать при утеплении крыш, потолков, стен, чердаков, подвалов и фундаментов.
- После впитывания воды не теряет свои свойства.
- Высокие показатели теплопроводности.
- Хорошо поглощает шумы и вибрации.
Минусы его использования:
- Плохо пропускает воздух. Со временем может начать выделять неприятный запах. Поэтому им лучше не утеплять зоны, где вы будете жить.
- Разрушается при воздействии лакокрасочных изделий.
- Быстро загорается.
- Привлекает грызунов.
Процесс утепления фасада домаИсточник besplatka.ua
Пенополиуретан. Плюсы его использования:
- Материал стойкий к химическим соединениям.
- Герметичен.
- Не требует дополнительных креплений.
- Безопасен при работе для окружающей среды и человека.
- Хорошо поглощает шумы и вибрации.
Минусы его использования:
- Низкая стойкость к ультрафиолету.
- Во время пожара выделяет вредные вещества.
- Высокая стоимость.
Экструдированный пенополистирол. Плюсы его использования:
- Не гниет и не разлагается.
- Не поглощает воду.
- Стойкий к химическим соединениям.
- Безопасен при работе для окружающей среды и человека.
- Высокая прочность.
- Прослужит долго.
- Устойчив к перепадам температуры.
Минусы его использования:
- Высокая стоимость.
- Слабая звукоизоляция.
- Низкая защита от ультрафиолета.
- Низкая экологичность материала.
Проекты одноэтажных домов с террасой: используемые материалы
Экологическое оформление террасы одноэтажного загородного дома
Материалы для оформления террасы: линолеум, дерево, камень
Одноэтажный дом с несколькими террасами. Оформление дома и пристроек выполнено из деревянного сайдинга
Бетонные полы и древесина в оформлении пристроенной к дому террасы
В настоящее время строительство домов осуществляется из разных материалов и их комбинаций. Например, можно возвести могущественный замок из натурального камня, построить прочную конструкцию из кирпича. Проект кирпичного дома с террасой порадует ваше воображение и позволит воплотить в реальность детские и взрослые мечты. Также у вас есть возможность создать огромные и практичные стены из бетона или отдать предпочтение классической древесине и материалам из нее. Первые три варианта хороши, но по сочетанию экологических свойств и доступности выигрывает, несомненно, натуральное дерево. Что может быть лучше, чем жить с семьей и растить своих детей в доме из натуральных элементов, обладающем достойными экологическими качествами.
Деревянный сайдинг в оформлении террасы контрастирует с глиняными горшками с геранью. Плетеная мебель, фарфоровые и металлические детали завершают дизайн одноэтажного дома с террасой
Просторная терраса с отделкой натуральным деревом и плетеной мебелью. Металлические фонари выполняют две функции: освещение и декор
Открытая отдельно стоящая терраса. Оформление – дерево
Дача в Швеции
Этот каркасный коттедж в шведском поселке Салтаро занимает всего 33 м² и располагается в живописном месте: на берегу озера. Скромную площадь дома компенсирует просторная многоуровневая терраса, адаптированная к неровностям участка.
На террасе с широкими ступенями можно устроиться с комфортом, положив подушки прямо на обработанные доски. Коттедж представляет собой лаконичную одноэтажную постройку, напоминающую бытовку или дом из контейнеров. Тёмный графитовый цвет делает его современным и придаёт облику благородства.
Внутри установлена печь с очагом за остеклённой дверцей. Печь отделяет кухню-гостиную от спальни, санузла и входной зоны. Чтобы сэкономить площадь, кровати поставили в ниши. Мебель из ИКЕА подчёркивает минималистичность интерьера, придавая ему лёгкости.
Дом из гаража в Великобритании
Владельцы участка на северном побережье Великобритании превратили старый пустующий гараж в комфортабельный коттедж. Бетонный дом площадью 46 м² выглядит необычно, но стильно и надёжно. Часть его фасада обшита деревянной дранкой и напоминает оперение птицы или чешую рыбы. Широкие подоконники установлены под наклоном и выступают дополнительным местом для отдыха.
На крытой террасе находится летняя кухня, сделанная из бетона: она позволяет готовить еду прямо во дворе дома. На участке стоят шезлонги и бетонный очаг. Интерьер коттеджа повторяет внешнюю отделку: для облицовки стен использован прочный микроцемент, в санузле находится бетонная ванна, в гостиной – камин. Чтобы добавить уюта, архитекторы добавили абажуры из лозы, натуральный текстиль и множество элементов из дерева.
Как сделать планировку самостоятельно
Вы задумывались о том, зачем нужен проект дома? Важность планировки не подлежит сомнению. Даже при строительстве деревенского дома сначала нужно нарисовать архитектурный проект фасада, фундамента, крыши, выполнить расчеты
Необходимо также изучить разрезы, чертежи основных элементов, внутреннюю часть планировки, спецификации. Не обойтись без плана подключения к сетям водоснабжения, канализации. Без проекта будущий дом признают самостроем и заморозят строительство.

Жилой дом представляет собою сложное по конструкции, количеству строительных элементов и их соединений строение. Невозможно его создать, не имея на руках план дома и соответствующую подробную документацию. Нельзя разработать проект жилья без специальных навыков и опыта. Непрофессионалу невозможно знать все о строительстве, но продумать планировку будущего здания вполне по силам.
Приступая к составлению плана дома, в первую очередь нужно определить размеры и форму будущего здания. При строительстве учитываются современные принципы планировки, работы ведутся с применением энергосберегающих технологий. Предпочтение отдают зданиям, которые занимают небольшую площадь участка. Сэкономить на строительстве можно, планируя прямые, без выступов и декоративных элементов стены. Для увеличения жилой площади в проект добавляют помещение мансарды или выполняют строительство в два этажа.
Традиционно выбирается прямоугольная планировка: 6х8, 7х9, 8х10, 10х12. Предпочтение отдают также квадрату, например: 8 на 8, 9х9, 12 на 12. В этом случае потребуется наименьшее количество строительных материалов. При выборе необычных планировок и элементов дизайна нужно учесть, что это увеличивает затраты на строительство.

 Планировка дома 12х12
Планировка дома 12х12
Проект дома, количество комнат и их назначение планируют в зависимости от следующих характеристик:
- числа проживающих;
- выделенного на строительство бюджета;
- образа жизни семьи: как часто гости задерживаются на ночь.
На лист бумаги в удобном масштабе наносится планировка территории. На проекте размещаются все имеющиеся строения. Расстояние от границы участка до дома регламентировано, составляет не менее 3 м.
Дома 150-200 кв.м.
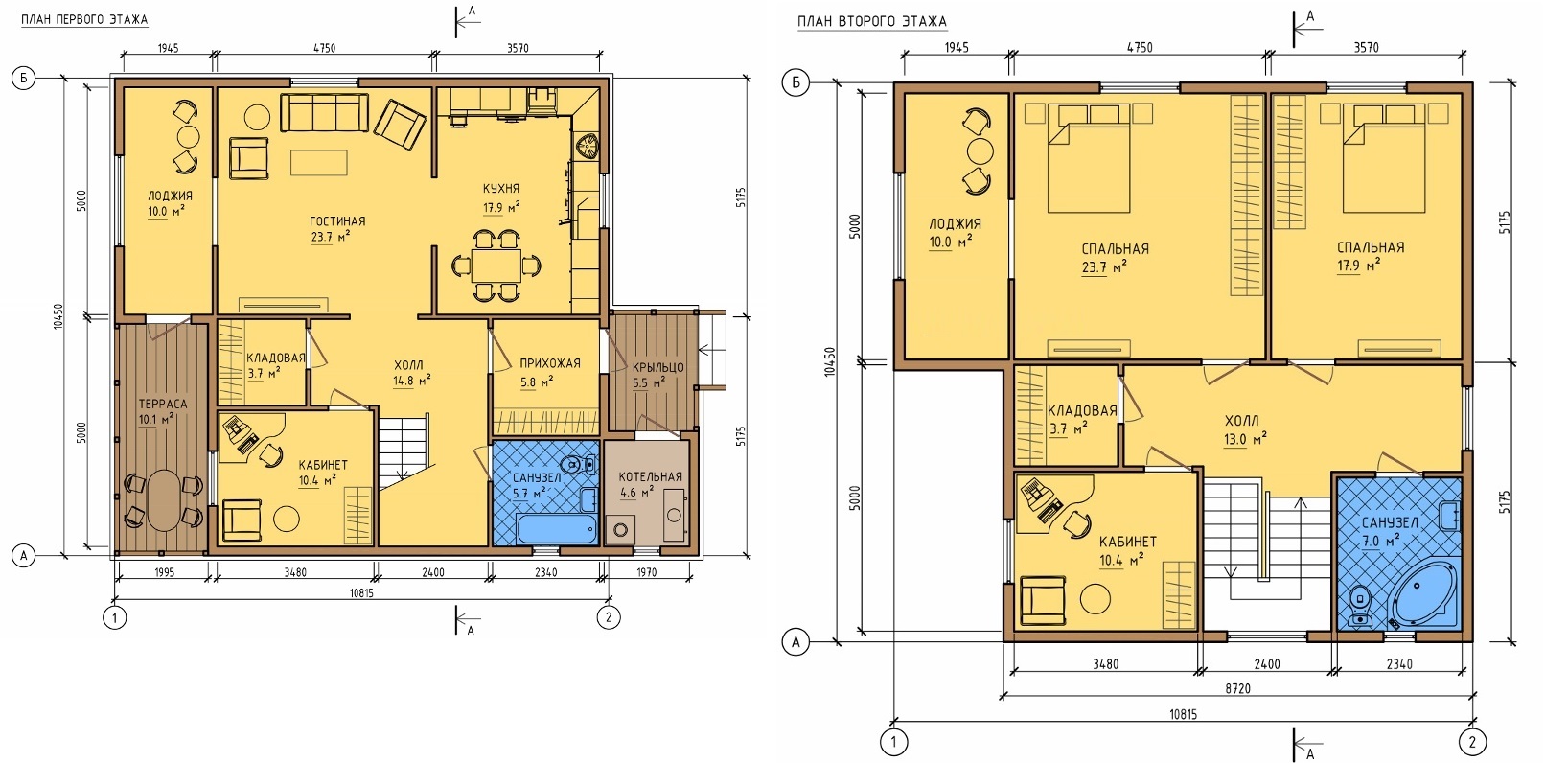
Размер строения: 10.5 на 13Площадь: 192 кв.м.


Проект предполагает постройку большого и комфортного, удобного дома. В нем будет котельная, второй вход с террасы, а также лоджия на двух этажах с большой площадью остекления. Просторный холл и кладовые делают дом удобным для использования в течении всего года.
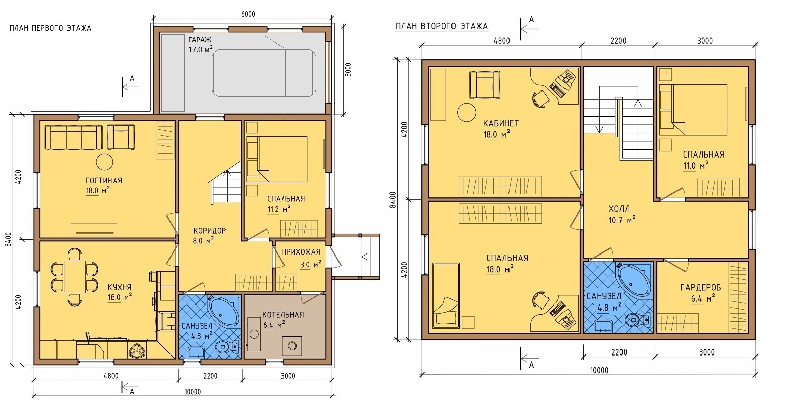
Размер строения: 8.4 на 10.5Площадь: 172 кв.м.


Отличительной чертой проекта является крыльцо, над которым можно возвести балкон огромной площади.
Размер строения: 8.4 на 10Площадь: 168 кв.м.


Комфортный дом большой площади с местом под установку газового котла в котельной.
Размер строения: 8.4 на 10Площадь: 167 кв.м.


По данному проекту можно построить комфортабельный дом для круглогодичного проживания с камином в гостиной. Сборка производится по так называемой технологии «Платформа».
Размер строения: 8.8 на 11.7Площадь: 198 кв.м.


Дом имеет не самую большую площадь, однако обладает изысканным внешним видом и весьма практичен. В нем есть встроенная сауна и камин в гостиной. Предусмотрено четыре спальни, при том их количество можно увеличить до пяти либо шести если установить мансардное окно в гардеробной. Кроме того, есть место под монтаж газового котла в специально предназначенном помещении.
Размер строения: 8.8 на 9.8Площадь: 197 кв.м.


Коттедж имеет большую террасу (патио) и панорамное остекление. В нем 3 спальни и помещение под кабинет, которое можно переделать под еще одну спальню либо гостевую комнату. Планировка делает дом удобным для проживания всей большой семьей. В котельной предусмотрено место под установку газового котла. Кроме того, она имеет большую площадь, что позволяет использовать ее в качестве подсобного помещения.
Размер строения: 9 на 9Площадь: 168 кв.м.


Высококомфортабельный коттедж с современным и очень красивым фасадом. В нем есть гостиная большой площади с кухней, а также три спальни на втором этаже. Кладовую при желании можно переделать под санузел.
Размер строения: 9.5 на 9.5Площадь: 180 кв.м.


Проект дает возможность построить недорогой, но при том очень удобный и просторный дом, имеющий камин в гостиной и предназначенный для круглогодичного проживания. Имеет второй свет, который можно не реализовывать, сделав еще одну комнату на втором этаже.
Размер строения: 8.4 на 10Площадь: 168 кв.м.


Уютный дом, просторный внутри и компактный снаружи. Имеется котельная с местом под установку газового котла. Отапливаемый гараж можно разместить с любой стороны здания.
Как выбрать проект
Архитекторы и дизайнеры предлагают большое количество проектов таких строений. Выбор зависит от:
- Размера участка.
- Предпочтений владельцев.
- Количества проживающих.
- Финансовых возможностей.
- Региона строительства.
- Выбранных материалов.
Проект будет исходить от ваших пожеланий и особенностей участка
Изучив эти вопросы, архитекторы предлагают вариант проекта. При необходимости его дорабатывают или изменяют в соответствии с желаниями заказчика.
Если дом используется эпизодически: только для отдыха во время отпуска или на выходных стоит подумать, нужна ли большая постройка? В этом случае он состоит из 2 спален, гостиной, которая объединена с кухней.
Небольшая постройка идеальна для эпизодического использования
Наличие в семье машины также отражается на выборе. Лучший вариант ее хранения – гараж. Она будет в безопасности и не подвергается коррозии
Важно подумать, как обыграть необходимость гаража и террасы на миниатюрном участке
Если в семье маленькие дети, а дом стоит на возвышении, террасу огораживают парапетом, чтобы предотвратить падения и травмы.
Ограждение убережет детей от падения и травм
Учитывайте рельеф участка
Терраса предназначена для отдыха, поэтому располагайте с видом на горы или озеро, лес или море. Если он строится в городе, подумайте о ландшафтном дизайне, который украсит участок. Если терраса примыкает, расположенному на склоне, то может возводиться не на сплошном фундаменте, а колоннах. Для песчаных грунтов сооружаются ленточные фундаменты. Иногда проектанты предлагают «врезать» дом в склон лесного или горного кряжа, чтобы подчеркнуть единение с природой.
Побеспокойтесь чтобы было видно красивый ландшафт
В чем преимущества и есть ли недостатки?
Перед выбором проекта важно взвесит, что подарит такой проект и какие могут быть «подводные камни»? Разберем подробней:
Терраса — это отдых на природе без выезда из дома
- Эстетическая красота. В отличие от 2 – 3-х этажных домов визуально не перегружают маленькие участки.
- Дешевле больших домов в несколько этажей. Можно без дополнительного строительства на участке беседки, места для мангала, барбекю.
- Не требует сооружения мощного фундамента. Строения не дает большую нагрузку на почву.
- Лучшая возможность для организации отдыха с близкими.
- Стоимость. Меньше нужно финансовых вложений и времени на строительство.
- Большой диапазон выбора стилевых направлений. Владельцы могут экспериментировать с размерами, материалами и цветом.
- Не препятствует передвижению по дому.
- Обеспечивает отдых на природе, без выезда за город или в лес.
- Увеличивает размер дома и помогает создать открытые функциональные зоны.
Есть ли недостатки. Да, но немного и несущественные:
Отдых на открытой площадке зависит от погодных условий
- Нужно заказывать анализ грунта. На влажных участках необходимо организовывать вентиляцию фундамента.
- В северных регионах можно использовать только в течение лета или устанавливать панорамное остекление.
- Отдых на открытой площадке без крыши зависит от солнца и дождя, снега и тумана. Нередко временное укрытие: тенты и зонты не спасают.
- На участках с ограниченной площадью не хватает места для комфортной (большой) террасы.
Отдых в тени плетеных растений
Дом бывает большим или маленьким, богато украшенным или лаконичным. Выберите удобный проект. Вам захочется возвращаться в него, принимать гостей, растить детей, любить и радоваться жизни. Поэтому выбирая, подумайте, какой вы видите свою жизнь завтра, через месяц, 10 или 50 лет.
Внутренний дворик в черно-белых тонах
https://www.youtube.com/watch?time_continue=19/hqdefault.jpg»>
Проект дачи с мансардой
Строительные фирмы предлагают большой выбор готовых проектов двухэтажных дач с мансардой, но могут сделать его и по индивидуальным желаниям. Поэтому желательно сразу определится с требованиями к будущей постройке, так как существует множество различных вариантов по архитектурным и конструктивным решениям. Выбирая форму крышу, следует учитывать, что именно от ее вида зависит площадь мансарды.
Проектирование окон в мансарде возможно как со стороны кровли, так и с фронтона. В первом случае окна отлично подойдут для наблюдения за звёздами, но тогда потребуется установить специальные мансардные окна с прочными стёклами, выдерживающими большие нагрузки.
Параллельно расположенные стропила можно не закрывать облицовочными материалами, а использовать для дизайна комнат. Мансарда под двухскатной крышей имеет две большие торцовые стены — фронтоны. Благодаря ним можно построить балкон, сделать большое окно или отдельную лестницу. Так же эти стены получаются самыми высокими, к ним можно поставить мебель больших размеров.
Как увеличить площадь мансардного этажа
Полезная площадь в мансарде увеличивается за счёт поднятия аттиковых (коленчатых) стен. Чем они выше, тем больше угол наклона, а значит, добавляется свободная площадь. Стены могут иметь разную высоту. Также увеличить площадь можно и визуально, сделав внутреннюю отделку в светлых тонах.
Делая увеличение мансардного этажа, следует знать, что потребуется произвести правильный расчёт нагрузки на стены.
Интересные идеи
Рассматривая фото одноэтажных домов бывает очень сложно определиться, какой из проектов действительно удачнее остальных.
Оптимальное расположение заключается на сегодняшний день в том, что ветра на вашем загородном участке преимущественно должны быть направлены прямо в скаты крыши. Таким образом можно уменьшить сопротивление, важную ветровую нагрузку во время непогоды и различных сильных порывов. Кроме того, осадки в таком случае не будут никогда попадать во фронтоны.
Решив построить одноэтажный дом с гаражом в месте, для которого характерны частые изменения в направлении ветров, то лучше всего использовать крышу одного из двух типов: вальмового, полувальмового, поскольку при данных конструкциях есть отличная возможность самостоятельно сформировать еще дополнительные плоскости или навесы, которые будут защищать стены от неприятного воздействия частых осадков.
Существует огромное количество самых различных вариантов для быстрого создания комфортного, но при этом и удобного плана помещений для будущей застройки понравившегося загородного участка. Выбор ограничен лишь вашими финансовыми возможностями и фантазией.
Материалы для здания и террасы
Выбирая материалы нужно подумать о том, что терраса в отличие от комнат постоянно подвергается постоянным воздействиям: ультрафиолетовым лучам, увлажнению дождем, снегом и туманом. В городах к этому добавляется пыль, автомобильные и промышленные выбросы, которые становятся «наждачной бумагой» для материала отделки. Поэтому выбирайте качественные материалы. Регулярно обрабатывайте их от выше перечисленного воздействия, очищайте от загрязнений.
Побеспокойтесь о защите террасы от природного воздействия
Полы покрывают материалами, которые могут сопротивляться высокой влаге:
- Кафельной плиткой (выбирайте термостойкие модели, с шероховатой поверхностью).
- Деревянной доской обработанной препаратами (лаками, морилкой, пропиткой), которые препятствуют гниению. Выбирайте смолистые сорта деревьев.
Если открытая площадка не встроена, крышу покрывают материалом. Столбики используют из надежных материалов: металла, деревянных брусьев большого размера, кладки из кирпича, камня, бетона.
Столбики должны быть из надежных материалов
Декорирование такое же, как у общего фасада дома. Интересное сочетание дают соединение различных материалов строительства или отделки: дерево и натуральный камень, кирпичная кладка и декоративная штукатурка, сайдинг разного цвета + фундаментные панели.
Основной принцип
Терраса должна быть дополнением, поэтому радикальные отличия внесут диссонанс с оформлением всего участка. Строение потеряет привлекательность.
Используйте кирпичную кладку как декор
Позаботьтесь о декоративных элементах
Если столбы конструкции сделаны из металла, добавьте кованые элементы. Для деревянных конструкций подойдут резные элементы, домотканые грубые дорожки. Кирпичная кладка хорошо гармонирует с глиняной посудой.
Натуральный камень гармонирует с деревом
Недостатки
Все же, недостатки двухэтажных строений также необходимо учитывать:
без лестницы, которая ведет на второй этаж, просто не обойтись. Как правило, она занимает от 7-12 кв. метров, в зависимости от самой конструкции. Второй нюанс – возрастная категория жильцов дома. С возрастом подняться на второй этаж будет уже не так легко, как раньше. Но если все-таки дом планируется для пожилой пары, второй этаж благоразумно будет отвести для гостевой спальни. Проект такой двухэтажной постройки должен предусматривать преимущественное расположение основных комнат именно на первом этаже. И еще один немаловажный момент: лестница – пожалуй, самое травмоопасное место;




если в планировке не предусмотрено расположение санузлов друг над другом, то довольно проблематичным станет система разводки канализационных труб и обеспечения вентиляции санузла и кухни на первом этаже;





нелегким будет и установка камина. Организация его на первом этаже требует четкого планирования пути прохождения дымохода через второй этаж. Кроме того, необходимо обеспечить пожарную безопасность в области перекрытия между этажами. Если планируется устройство камина на втором этаже, потребуется укладка железобетонного основания;






- при одинаково устроенной теплоизоляции дом с одним этажом будет на порядок теплее (примерно на 10%) двухэтажного;
- в случае пожара из одноэтажного дома буде намного проще эвакуироваться.







Фотографии красивых примеров оформления балконов в частном доме
В большинстве случаев популярные архитекторы планируют балкон на переднем фасаде коттеджа, чтобы он занял центральное место на внешней стене дома и имел одну общую крышу. Для строений небольших площадей – это идеальный вариант.
 Такой балкон часто располагают над крыльцом или террасой
 Такой балкон часто располагают над крыльцом или террасой
Такие балконы в частном доме имеют презентабельный наружный вид, смотрите ниже расположенное фото
Великолепное оформление полукруглой конструкции ажурными коваными элементами привлекает всеобщее внимание к фасаду частного дома или коттеджа
 Полукруглый балкон с ковкой будет уместен на доме, оформленном в классическом стиле
 Полукруглый балкон с ковкой будет уместен на доме, оформленном в классическом стиле
Как еще можно оформить балконы в частном доме можно посмотреть на представленных ниже фотопримерах.
С верандой и террасой
При выборе планировки дачного дома часто стараются найти проект с верандой или террасой. Подобная крытая площадка хороша не только для отдыха или трапез на открытом воздухе. В дождливый или жаркий день под навесом можно провернуть немало дел, которые из-за большого количества мусора в помещениях не сделаешь.
Отдых на даче не менее важен, чем работа. А что может быть приятнее, чем отдых на открытом воздухе
На общем фундаменте
Проекты дачных домов с верандой есть небольшой площади: самые маленькие имеют размеры 6*4 метра, причем веранда занимает 2 метра по длинной стороне, а собственно дом — 4*4 метра или 16 квадратных метров (с учетом толщины стен и того меньше).
Проект дачного дома 6*4 с верандой и санузлом
Представленный выше проект предусматривает зимнее использование дачи. Для сохранения тепла в домике, есть вход через тамбур. Вход через веранду может использоваться в летнее время. Хорош он и тем, что есть в нем санузел — небольшая душевая кабинка, с умывальников и унитазом. Если канализации на даче нет, можно рассмотреть вариант биотуалета.
Еще один вариант — одна комната, в которой отведено место под несколько кухонных шкафчиков и плиту, стоит небольшой обеденный стол и есть спальное место. Такая планировка идеальна для проживания одного человека. Неплохо в ней себя будут чувствовать двое. В данном варианте санузла нет, так что придется строить туалет отдельно.
Проект маленького дачного дома с верандой под общей крышей
Планировка дачного дома маленькой площади (до 40 метров) совсем проста: обычно это две комнаты, первая из которых используется как кухня и столовая одновременно. Чаще всего она является проходной. Вторая комната жилая. Более-менее комфортно разместить тут можно два спальных места. Так что проекты дачных домов с мансардой 6*4 метра рассчитаны на проживание 1-2 человек.
Проект дачного дома с санузлом и открытой террасой под односкатной крышей
Если бюджет строительства сильно ограничен, рассмотреть проекты дачных домов с односкатной крышей. Они непривычны для нашей станы, но стоимость кровли при небольшой площади намного меньше. Только надо выбрать правильный угол уклона кровли (с учетом величины снежного покрова).
Дачный дом с зарытой зимней верандой 8*8 метров, проект с планировкой
Дачный дом средних размеров представлен на фото выше. Проект интересен тем, что веранда тут изначально «зимняя», застекленная. Большинство обладателей открытых веранд приходят к необходимости ее застеклить, а для приятного времяпровождения на воздухе построить беседку. В данном проекте веранда является продолжением гостиной, но тут может быть установлена перегородка. В общем и целом, удобный и комфортный дом с традиционной планировкой, все комнаты отдельные, есть санузел, выгороженный коридор. Все условия для круглогодичного проживания.
На отдельном фундаменте
Обратите внимание, что приведенные выше проекты дачных домов с верандой имеют общий фундамент. Это надежно, так как даже при весеннем пучении почвы подвижек не будет
Но затраты на фундамент получаются значительные. Потому обоснован такой подход на сложных грунтах, склонных к пучению. В на нормальных грунтах можно можно делать веранду на отдельном, несвязной и облегченном (обычно — столбчатом или свайном) фундаменте. Один такой проект представлен ниже.
План дачного дома 4*8 с пристроенной верандой
Вообще, веранду можно пристроить к любой постройке. Ее можно закладывать на этапе проектирования, а можно пристроить после (как бывает очень часто).
Небольшой дачный дом 6*4,5 с верандой на отдельном фундаменте
Веранда может занимать полностью одну из сторон дома, может охватывать два или даже три его стороны. Но есть варианты и с небольшой открытой площадкой (как на фото выше). Фундамент в этом случае может быть отдельный, но большой экономии не будет. Например, в приведенном выше проекте «выиграли» лишь 1,1 метра «основного фундамента.
Одноэтажный дом 7*7,5 с пристроенной террасой
Мы настолько привыкли к комфорту, что даже на даче не желаем иметь «удобства во дворе». Для многих основным критерием выбора является наличие санузла. Даже необходимость оборудования индивидуальной канализации их не пугает. Не все проекты дачных домов маленькой площади могут похвастаться таким «излишеством», но в некоторых санузел (туалет и душ) присутствует.
Планирование
Необходимо учитывать розу ветров
Почему это важно? Террасы используют для отдыха. Если разместить ее со стороны преобладающих ветров, то комфортное время препровождения сложно обеспечить
Рационально располагать со стороны внутреннего дворика. Проще организовать комфортное пространственное объединение с местом отдыха на улице, с зоной барбекю, бассейном, детской площадкой, дорожкой к беседке, с видом на альпийскую горку или красивый цветник.
Идеальное место – это внутренний дворик, что защищает от ветров
Выход лучше организовать из столовой или гостиной. Не стоит объединять террасу со спальнями. Открытая площадка располагается с противоположной стороны от основного входа. Владельцам маленьких участков нужно организовать живую изгородь или другое декорирование. Это поможет спрятать свою жизнь от посторонних глаз соседей.
Уютно отдыхать на открытом воздухе возле огня
Расположение по сторонам света
Планировка зависит от собственных предпочтений, ритмики жизни, окружающего ландшафта и участка:
- Для любителей любоваться заходом солнца – западная часть станет идеальной. Солнце освещает площадку после обеда.
- Восточное расположение дает свое преимущество – утренние лучи солнца способствуют бодрому подъему и подготовке к грядущему дню.
- Северная часть гарантирует мягкий рассеянный свет и террасу хорошо совмещать с мастерскими, столовыми комнатами. В этом случае не стоит рядом высаживать высокие растения: деревья, вьющиеся кусты и вьющиеся цветы.
- Южная – максимально обеспечивает солнцем. В течение лета необходимы тенты или навесы, чтобы снизить воздействие палящих лучей.
Учитывайте свои предпочтения при планировке
Благодаря тщательному планированию дом и терраса становится удобным местом отдыха и долго служит владельцам. Не требуют частых капитальных и обслуживающих ремонтов.
Что следует предусмотреть: особенности возведения
Террасу нельзя возводить на грунте без фундамента. Чтобы в процессе эксплуатации не возникали проблемы: кровля не деформировалась, не лопалась, пол оставался горизонтальным, необходим надежный фундамент. Он заливается или сооружается одновременно с основным зданием, это гарантирует безопасность.
Обязательно сделайте фундамент под конструкцию
Сооружение не требует больших вложений. Работы производятся быстро. Можно без сложной строительной техники (экскаватора, автокрана). Не используются сложные методы строительства: монтаж на высоте, утепление.
Сооружение не затратное и при этом добавит уюта вашему дому
Если не выполнить это условие, даже открытая веранда начнет отходить: атмосферные осадки попадают под фундамент основного строения, зимой мороз делает свое дело: разрывает раствор, начинает ржаветь арматура. Со временем все строение может деформироваться.
Как своими руками сделать большие цветы из гофрированной бумаги с конфетами. Пошаговый мастер-класс + 75 ФОТО роскошных букетов
Гараж
Проекты загородных домов с гаражом весьма востребованы. Такая планировка дает хозяину несколько преимуществ:
- Становясь частью дома, гараж не занимает отдельное место на участке, при этом экономится площадь.
- Включение гаража в план здания дает жильцам возможность переходить в дом, минуя улицу.

Необходимо учитывать, что над гаражным помещением не должен быть размещен жилой блок. В первую очередь из соображений пожарной безопасности. К тому же, это повлечет дополнительные расходы:
- устройство в гараже системы вентиляции;
- теплоизоляция, пароизоляция и звукоизоляция жилых помещений над гаражом;
- обеспечение системы пожаротушения в гараже.
Но эти правила в реальных проектах часто нарушаются.
Проект одно- и двухэтажного дома: разница в экономии
Отдельным пунктом следует выделить вопрос стоимостного сравнения домов. По сути, здесь одно простое правило: чем выше этажность постройки, тем дешевле обойдется 1 кв. метр полезной жилой площади. И экономия тут начинается именно с крыши. Она меньше по площади, а значит расходы на кровельный материал и установку каркаса также сокращаются.






Если соорудить междуэтажное перекрытие из древесины, то можно на порядок сэкономить на черновой, чистовой стяжке и в утеплении самого пола. В данном случае напольная доска выступает и в качестве завершающего покрытия, и в качестве несущей части. А если использовать для перекрытия бетон, то разница в стоимости напольного покрытия в одно- и двухэтажном здании сводится на нет.








На заметку: дополнительно уменьшить расходы позволяет возведение дома с мансардой. Сэкономить можно на 35-40%, но если это будет типичный двухэтажный дом.









Что касается фундамента, то здесь надо учитывать, какой именно материал будет использоваться для постройки. Так, двухэтажные дома из кирпича потребуют закладки мощного, высококачественного, дорогого фундамента, который способен выдерживать большие нагрузки. В данном случае стоимость двухэтажных строений, по сравнению с аналогичной площадью одноэтажных, если не будет идентична, то вполне может оказаться на порядок выше последних.

Совет: строительство двухэтажной конструкции из бруса сократит затраты на фундамент.


Еще один аспект, который также надо учесть при возведении двухэтажного дома – цена на аренду строительных лесов.

На заметку: чем более правильная форма (прямоугольник или квадрат) будет дома и фасадов, тем дешевле и проще будут строительные работы, при этом такие постройки ни сколько не теряют в привлекательности.


































 
    


