О реалиях жизни
Свободные земельные участки вокруг крупных городов пользуются повышенным спросом. Если участку посчастливилось иметь правильную форму, а рядом имеется продуманная инфраструктура, это сразу отражается на его стоимости. Большинство наделов не могут похвастаться премиальным набором качеств, и будущим застройщикам приходится выбирать, сравнивая варианты с разнообразным рельефом, формой и типом грунта, различной доступностью коммуникаций и выезда на шоссе.
Все недостатки имеют то или иное решение, наиболее серьезные проблемы вызывает часто встречающийся вариант — вытянутый в длину надел; грамотная застройка такой территории становится первоочередным вопросом. Не самая удачная форма участка — не повод менять амбициозные планы. Строительные организации и компании, занимающиеся проектированием и строительством домов, приспособились к тенденциям рынка. Потенциальным заказчикам предлагается широкий выбор проектов для размещения на нестандартных земельных участках.

Проект с крытой террасойИсточник lk-projekt.pl
Какой вариант застройки выбрать?
Для оптимального выбора будущего проекта частного дома следует всегда руководствоваться здравым смыслом и советами профессионалов. Чтобы дом был построен в строгом соответствии с проектом, рекомендуется выбирать услугу «строительство под ключ», включая проектный этап, на котором можно предусмотреть все свои пожелания. При ведении строительных работ, по четко определенному проекту, с правильно подобранными стройматериалами, гораздо проще добиться экономии и рациональной траты бюджета.
Обратившись к услугам профессиональных строительных компаний, предлагающих строительство коттеджей под ключ, владелец участка сможет избежать всех ошибок и скрытых недостатков как при строительстве дома с мансардой, так и при строительстве индивидуального жилья со вторым этажом.
Выбор оптимального варианта застройки всегда определяется совокупностью множества факторов, учесть которые могут только профессионалы. Опытные специалисты помогут каждому обратившемуся к ним заказчику сделать правильный выбор между домом с мансардой и домом с полноценным вторым этажом с учетом всех пожеланий заказчика и его финансовых возможностей.
Красивые примеры
Двухэтажное здание в современном минималистичном стиле не выглядит громоздким, несмотря на вытянутый силуэт. В доме предусмотрен небольшой балкон и открытая летняя терраса, при этом на участке остается достаточно свободного места.


Компактный вариант с гаражом. Коттедж двухэтажный, что позволяет расширить жилое пространство. Над гаражом можно обустроить площадку для отдыха.


Небольшой дом с мансардой – отличный вариант. Широкая крыша создает навес над балконом, поэтому можно не опасаться дождя и непогоды. Проект также предусматривает гараж на первом этаже.


Вариант с мансардой. Интересное решение – окна в крыше, которые обеспечивают доступ солнечных лучей и делают помещения более светлыми. У этого коттеджа есть небольшой балкон и гараж.


Одноэтажный узкий дом, который подойдет для проживания семьи из 2-3 человек или в качестве летней дачи. С одной из сторон пристроен гараж и оборудован подъезд для машины.


Уютный одноэтажный дом с летней террасой. Для лучшего доступа естественного света оборудованы панорамные окна. Одной из сторон коттедж практически вплотную прилегает к забору, чтобы сэкономить свободное пространство на участке.


Схемы планировок при проектировании узких зданий
Типовые проекты довольно легко адаптируются к конкретному участку. Это могут быть проекты узких одноэтажных домов или двухэтажных с мансардой. В доме для узкого участка необходимо правильно выполнить теплоизоляцию по причине меньшей энергоэффективности такого здания, в отличие от обычных домов с квадратными формами.

Проект одноэтажного дома для узких участковИсточник yandex.md
Кухня или гостиная лучше разместятся в торце здания, а для спальни подойдёт второй этаж. Готовые проекты создаются с учётом места нахождения инженерных коммуникаций и возможности подъезда тяжёлой техники.

Проект и планировка двухэтажного узкого дома с нежилым чердакомИсточник centermira.ru
Планировка узкого дома с жилой мансардойИсточник opsar.ru
Если не планируете заводить автомобиль, то есть планировки домов без гаражаИсточник glezer.ru
Особенности коттеджей на узких участках
Нередко жилье предполагается возводить на полосе шириной 12-15 метров, и это способно вызвать определенные трудности. Действительно узкими считаются наделы, чья ширина не превышает 10 метров. Если вы будете возводить дом с учетом норм застройки (расстояние до границы с соседями), то его ширину придется ограничить семью-восемью метрами, что означает изрядно вытянутые пропорции.
Удлиненное строение требует увеличения затрат, о чем следует помнить. Периметр (суммарная длина стен) узкого дома больше, чем квадратного с той же площадью, поэтому узкая постройка обойдется несколько дороже. Вместе с тем, дома малой ширины комфортны и вмещают все необходимые помещения; их возведение выполняется с учетом законодательных норм и следующих приемов эргономичного строительства:
Большинство проектов имеют два этажа или мансарду (реже встречается цокольный этаж). Такая вынужденная мера вполне объясняется требованиями комфорта — жить в длинном одноэтажном доме неудобно со всех точек зрения.

В стиле минимализмИсточник fasadi-krovlya32.ru
- Функциональный узкий дом. Планировка с учетом конкретных параметров помогает избавиться от ощущения стесненности. Архитекторам известно немало приемов рационального использования драгоценных квадратов. Расширить пространство помогают веранды, балконы, современные приемы планировки, обустройство цокольного этажа.
- Расположение дома. Оптимальное решение — прижать постройку к той стороне участка, на которую падает тень. Если рядом проходит шумная дорога, дом смещают к центру территории.
- Ориентация дома. При возможности торцевые стены ориентируются на восток и запад; это позволит не терять солнечную энергию и естественное освещение. Вход в дом нередко располагаются с торца участка.
- Особенности конструкции. Стена, близкая к границе участку, делается глухой (без окон) и ограждает домочадцев от любопытства соседей. Использование в проекте крыши шале позволит компактно разместить не только дом, но и террасу, гараж и балкон.
- Дизайн ландшафта. Грамотно подобранный проект дома позволит выгодно распорядиться территорией надела, сохранив при этом необходимую приватность.

Узкий дом с гаражомИсточник el.decorexpro.com
Проект 8×8
Одноэтажный дом-баня из бруса на ленточном фундаменте включает террасу, одну комнату, помещения для банных процедур: парную и душевую. Есть выход на террасу.
Общая площадь одноэтажного дома-бани — 50 м2.
- площадь террасы — 12 м2;
- количество комнат: 1;
- материал (оцилиндрованное бревно д200; бревно ручной рубки; брус/профилированный брус 150×150);
- ленточный фундамент;
- обработка антисептиком.
Планировка пространства:
- тамбур — 3,55 м2;
- комната отдыха — 23,35 м2;
- парная — 5,20 м2;
- душевая — 2,90 м2;
- санузел —2,90 м2;
- терраса — 12,10 м2.
Пространство комнаты можно зонировать и выделить место для обустройства кухонного уголка. В зоне отдыха устанавливают диван, который можно раскладывать и превращать в спальное место.
Комплектация «под крышу» (фундамент, коробка, крыша):
- сруб бани (бревно):
- материал внутренних стен — бревно;
- терраса с перилами из бревна;
- лаги на первом уровне + устройство;
- потолочное перекрытие снабжено стропилами;
- высота строения — 2,1 м (3,6 м — с фронтонами);
- межвенцовое утепление;
- система стропил изготовлена из обрезной доски (50х150) + устройство;
- обрешетка выполнена из обрезной доски (25х150) + устройство;
- крепление — метизы;
- компенсаторы усадки.
- временная кровля под усадку + устройство;
- разгрузка;
- монтаж стенового комплекта (включая слой межвенцового утеплителя).
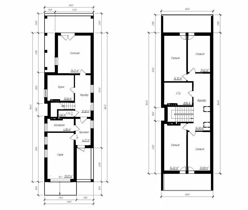
Планы двухэтажных домов: правила планировки этажей
Перед строительством дома важно определиться с планировкой двухэтажного дома, грамотно выполнить которую могут только квалифицированные специалисты. Рациональное размещение помещений позволит комфортно разместиться всем членам семьи. Обязательно необходимо учитывать расположение лестницы
Обязательно необходимо учитывать расположение лестницы.
Важно учитывать расположение комнат по отношению к сторонам света. Кухню можно расположить с окнами на восток или юг, для гостиной подойдет выход на запад, спальне- восток. На северной стороне дома желательно установить лестницу
На северной стороне дома желательно установить лестницу.
Расположение улиц также необходимо учитывать при планировке. Комнаты отдыха желательно устраивать вдали от шумных проездов.
Как правильно выбрать проект помогут советы архитектора.
Watch this video on YouTube
Правильная планировка первого этажа
Правильная планировка должна вмещать обязательные помещения:
- кухню;
- гостиную;
- холл;
- санузел;
- тамбур.
Проекты больших домов могут позволить организовать столовую зону, место для рабочего кабинета или библиотеку и жилое помещение для гостей.Комнату для установки котла и стиральной машины можно планировать и на первом, и в цокольном этаже.
Золотой серединой планировки считается пространство с минимальным количеством коридоров, с вариантами планировки можно ознакомиться в каталогах интересных фото проектов частных домов.
Правильная планировка второго этажа
Его принято считать зоной сна и отдыха. Желательно предусмотреть ванною комнату и санузел. Отдельную комнату желательно отвести под общую гардеробную.
Над гаражом планировать спальные комнаты нежелательно. Над ним можно продумать установку лестничного марша, гардеробная или холл.
Типовой план двухэтажного этажа
Правила совмещения нескольких помещений
В небольших домах лишние перегородки устанавливать не желательно. Для небольших площадей подойдет оформление в виде студии. Например, можно объединить в одном пространстве гостиную, столовую и холл, визуально зонируя направленность.
Лестница может стать условным разграничителем пространства. Установка барной стойки ломаной геометрической линии или в виде овала отделит кухню от общего пространства.Фото проекты домов и коттеджей с интересным совмещением представлены в галерее.
Зонирование гостиной-столовой
В чем преимущества мансарды?
Выбор в пользу мансарды многие застройщики делают в целях общей экономии строительных работ, которая достигается за счет отказа от кладки стен второго этажа по всему периметру строения. Кроме этого возведение мансардного этажа позволяет:
- сэкономить на фундаментных работах, так как для двухэтажного дома потребуется возводить более заглубленное и прочное основание;
- рационально использовать чердачное пространство;
- увеличить энергетическую эффективность всего дома без дополнительных затрат на его отопление;
- создать с помощью скошенной крыши оригинальное экстерьерное и интерьерное решение коттеджа;
- проводить реконструкцию чердака старого дома без выселения с нижнего этажа.
Все эти факторы делают это архитектурное решение все более популярным для тех, кто желает недорого построить современный комфортабельный дом с оригинальной планировкой.
Общие сведения
Но все же в таких условиях можно построить дом, который не будет напоминать барак. Есть большой выбор среди известных дизайнерских решений, тем более такие проекты домов недорогие и весьма практичные. Большинство проектов даже адаптированы под те или иные регионы страны.
Особенности
При планировке такого дома все делают по следующим принципам:
- Высоту дома увеличивают – расположенную на узком участке постройку делают двухэтажной и с мансардой, которую утепляют, тем самым делая ее жилой.
- Расширяют пространство – для этого используют дополнение в виде цокольного этажа. Чтобы в нем было комфортно жить, делают несколько окон.
- Размещение дома – постройка будет расположена таким образом, что торцевые стены ориентируются на запад и восток для естественного освещения.
- Конструкция крыши – благодаря необычной конструкции крыши шале рядом с домом можно сделать еще и террасу.
При возведении дома на узком участке определенным требованиям должен соответствовать и ландшафтный дизайн. Если сделать грамотный проект, вы сможете использовать купленную территорию по максимуму, и при этом сохранить приватность даже при плотном расположении близлежащих домов.
Коттеджи и дома, которые расположены на узких территориях, имеют ряд особенностей:
- План вытянутый.
- Фронтоны обращены в сторону улицы.
- Глухие стены (одна или две).
- Окна находятся на более освещенных сторонах, или же дома обладают панорамной конструкцией.
- Есть эркеры, окна на мансарде и окна для второго света.
- Наличие цокольного этажа, где будет тренировочный зал, кладовая или котельная.
- Второй этаж нависает над террасой.
- Для компактности устанавливают одномаршевую лестницу.
Эти особенности проектов для домов на узких участках с мансардой позволяют не только визуально увеличивать пространство внутри, но и делать жилье удобнее.
Особенности коттеджей для узкого участка
Для современных проектов домов с минимальной шириной характерен не только привлекательный вид, но и достаточная вместительность. В данном случае небольшая площадь позволяет вмещать там все помещения для комфортного проживания всей семьи. При планировке обычно применяются главные принципы и идеи эргономичного строительства:
- наращивание строения в высоту (двухэтажное, с утеплённой мансардой);
- благодаря обустройству цокольного этаж а возможно увеличение внутреннего пространства, а комфортному нахождению в помещении благоприятствует установка нескольких окон;
- размещение дома с ориентиром торцевых стен к западу и востоку, обеспечивая наилучшее естественное освещение и прогрев;
- использование крыше «шале» – под ней возможно размещение самого дома, гаража, террасы, лоджии.

Дом-шале для узкого участкаИсточник glezer.ru
У узкого земельного участка есть свои необходимые особенности ландшафтного дизайна. Оптимальное проектирование постройки позволяет максимально эффективно использовать территорию земельного участка и хранить приватность своего владения даже при самом близком соседстве.
Коттеджи на узком участке имеют некоторые отличительные особенности:
- удлиненный план;
- расположение фронтальных сторон здания к улице;
- одна или две глухие стены;
- окна располагаются на самых освещённых сторонах, зачастую панорамной конструкции;
- эркеры, мансардные окна, окна второго света;
- наличие цокольного этажа, с расположением там кладовой, тренировочного зала, котельной;
- нависающий второй этаж над террасой;
- установка узкой одномаршевой лестницы.
Благодаря своим особенностям проекты с узкими владениями позволяют произвести не только визуальное увеличение домашнего пространства, но обеспечить жилое пространство наибольшим комфортом.

Дом в стиле хай-тек для узкого участкаИсточник centermira.ru
Что стоит дороже: мансарда или второй этаж?
При детальном сравнении проектной документации домов с мансардой и двухэтажных коттеджей, застройщики нередко приходят к выводу, что затраты на такое строительство примерно одинаковы.
Вся экономия на отказе от возведения второго этажа сходит на нет за счет больших расходов на современные стройматериалы, необходимые для строительства комфортабельной мансарды. К тому же, она часто становится непригодной для проживания при наличии различных повреждений и деформации кровли, при проведении ремонтных работ на крыше.
Наличие полноценного второго этажа обеспечивает увеличение жилого пространства и позволяет при этом использовать чердак для хозяйственных нужд. При одинаковой общей площади мансарды и второго этажа, выбор во многом зависит от точного учета всех преимуществ и недостатков двухэтажных домов в сравнении с домом, имеющим мансардное пространство.
Планирование территории
Скорее всего, такой участок удобно будет разбить на 3 зоны:
- Жилая – в которой располагают непосредственно дом, декоративные элементы, цветники, зоны отдыха.
- Хозяйственная зона, в которой устраивают бани, сараи, другие подобные здания.
- Зона огорода и сада, в которой также строят парники, теплицы, устраивают клумбы.
Само расположения зон на участке зависит не только от его ширины, но и от рельефа и ориентации по сторонам света. Например, если планируется сад или цветник, их лучше разместить на солнечной стороне. Другие зоны – с противоположной. Например, хозяйственные блоки строят в затененных местах.
Традиционно, проекты домов для узких участков разрабатывают так, чтобы расположить здание ближе к улице, фронтоном к ней. Но это не всегда правильно. Если дорога нагруженная автомобилями и шумная, то жилую зону лучше разместить вдали от нее. В передней части участка в таком случае лучше устроить сад или построить хозяйственное здание. В таком случае удастся обеспечить комфортное проживание людей.
Так как на узком участке дом практически во всех случаях будет иметь прямоугольную планировку, то длинной частью здание лучше размещать максимально близко к продольной границе участка. Конечно, не стоит забывать о минимальном расстоянии от соседних территорий и зданий:
- минимум 3 м до границы соседнего участка;
- 6 м между каменными огнестойкими домами;
- 10 м между каменным и деревянным строениями;
- 15 метров между деревянными зданиями.
При выборе расположения здания следует учитывать то, в каком месте участка расположены инженерные сети и сооружения. Если этого не сделать, возможны трудности с подводом воды, канализационных сетей, электричества. Если нужен проект с гаражом, скорее всего на таком участке его придется строить вместе с домом или перед ним, так как не всегда получается устроить проезд к отдельно стоящему гаражу за зданием.
Если участок не только узкий, но и малой площади, гараж целесообразно устроить в цокольном этаже. Если площадь позволяет, отдельный гараж строят перед домом с въездом с улицы.
Почему выгодно обратиться к нам?
- Наши проекты– это оптимальное сочетание красоты, удобства и функциональности. Опытные архитекторы нашей компании работают с максимальной отдачей, стараясь дать нашим заказчикам возможность построить современный комфортабельный дом на ограниченном пространстве.
- Мы предлагаем большой выбор интересных конструктивных и дизайнерских решений.
- Чтобы стать обладателем проекта узкого дома, достаточно выбрать понравившийся вариант и связаться с нами по телефону или через форму обратной связи на сайте. При заказе цикла подрядных строительных работ в Юникс Строй, Вы получите проект бесплатно.
Дом с мансардой – особенности проектной документации и выбора стройматериалов
Проекты коттеджей с мансардой очень разнообразны. Существуют односкатные, двускатные и даже трехскатные крыши, у них может быть разная высота и угол уклона.
Конструкция самой кровли также имеет множество особенностей. Поэтому следует еще на этапе проектной разработки учесть все нюансы, чтобы получить действительно комфортный мансардный этаж.
Мансарда является, по сути, продолжением крыши, но в отличие от чердака, в ней можно проживать постоянно, как в теплое, так и холодное время года. Плюс она позволяет построить дом с меньшим расходом стройматериалов, поскольку стены устанавливаются не в полную высоту.
Основная ошибка большинства строителей — слишком крутой наклон крыши, а следовательно, низкие и неудобные потолки под ней. Чтобы этого не произошло, следует правильно провести все расчеты, чтобы границы мансарды с кровельным покрытием соответствовали установленным технологическим нормативам.
Перед строительством мансарды нужно правильно составить чертежи, отражающие все этапы строительных работ, и учесть оптимальные величины мест пересечения самой мансарды с началом ломанной линии кровли. Линии их пересечения должны начинаться с высоты не менее 1,5 метров.
Только при соблюдении таких проектных условий можно создать помещение, комфортное для постоянного проживания.
Что касаемо высоты мансардного этажа, санитарно-гигиенические нормативы в жилищном строительстве устанавливают минимальную высоту потолка в помещениях, пригодную для постоянного проживания — не менее 2,5 метров. При проектировании мансарды следует учитывать данный норматив и отвести под помещения с такой высотой не менее 50% пространства.
Также, при разработке проекта дома, следует учитывать соотношение высоты стен и поверхности кровельного покрытия. Для этого следует правильно:
- составить строительные чертежи, отражающие все этапы строительства;
- вывести оптимальное соотношение вертикальной части мансарды с поверхностью кровли;
- выбрать подходящие кровельные материалы;
- подобрать нужные теплоизоляционные материалы.
При соблюдении всех требований и технологических стандартов площадь мансардного помещения будет такой же, как и площадь обычного второго этажа.
Кирпич в одноэтажных проектах
При возведении одноэтажных загородных домов и коттеджей применяют два типа кирпича, отличающиеся назначением:
- Строительный (рядовой) кирпич. Его используют для возведения стен, внутренних перекрытий, подвалов. Производитель предлагают несколько разновидностей материала в двух исполнениях — полнотелый (классический) и пустотелый (с улучшенной теплоизоляционной способностью).
- Облицовочный кирпич. Выполняет защитно-декоративную функцию. Кирпич, предназначенный для облицовки фасадных стен, обладает повышенной прочностью и устойчивостью к колебаниям температуры и влажности. Облицовочный материал имеет привлекательный внешний вид, разнообразный цвет и фактуру.
Для строительства одноэтажных кирпичных домов используют несколько видов рядового кирпича:
Полнотелый красный. Материал имеет широкий спектр использования благодаря высокому уровню прочности. Стены из красного кирпича нуждаются в утеплении и дополнительной отделке; их оштукатуривают или облицовывают фасадным материалом.

Рядовой кирпичИсточник neruds.ru
Керамический поризованный. Воздушные микропоры в материале обеспечивают улучшенные тепло- и звукоизоляционные характеристики стен (в 3-4 раза лучше, чем у обычного кирпича). Кирпич обладает повышенной прочностью и стоит дороже классического аналога.
Белый силикатный
Кирпич обеспечивает неплохую звукоизоляцию, но неважно сохраняет тепло. Поэтому его используют в сочетании с другими типами кирпичных изделий, как облицовочный слой
Использование кирпича в одноэтажном домостроении имеет дополнительные плюсы:
- Оригинальный дизайн. В продаже имеется значительный ассортимент оттенков и видов облицовочного и кладочного кирпича. Такое разнообразие материала позволяет реализовать загородный коттедж в любом из существующих стилей, от классического английского, до современного и стиля хай-тек.
- Улучшение характеристик дома. Кирпич обеспечивает хорошую звукоизоляцию жилья. Кирпичные стены демонстрируют низкое водопоглощение и устойчивость к природным факторам, что надолго сохраняет внешний вид фасада.
- Экологичность. Кирпич изготавливается из природных компонентов, безопасных для здоровья человека.

Разновидности облицовочного кирпичаИсточник gip-press.ru
Особенности постройки
Проект под узкий участок – коттедж небольшой ширины, удобный, вместительный, с набором требуемых помещений для комфорта проживающих в нем. Современные проекты длинных домов объединяют в себе набор «секретов» эргономичного строительства:
- Цокольный этаж позволяет увеличить внутреннее пространство.
- Сооружение делается высоким – двухэтажным с мансардой.
- Используется кровля «шале» – для защиты непосредственно коттеджа, гаражного бокса, небольшого балкона и маленькой террасы.
- Торцевые стены ориентируются на запад и восток – так лучше происходит прогрев здания и достигается нормальное освещение.
Выбор этажности, обустройство гаража, террасы, оригинальности планировки – это основные моменты, которыми не стоит пренебрегать, выбирая проект дома под узкий участок. Также нужно учесть особенности местности, форму участка, пожелания будущих хозяев коттеджа.

Для прямоугольного участка
Коттеджи, которые находятся на прямоугольном участке, как правило, делаются в два этажа, с мансардой. Если верхний этаж сделать больше, можно сэкономить площадь. Если стены выходят на соседний дом, чаще всего их делают без окон. Это объясняется приватностью и плохим освещением. Естественный свет нужно использовать эффективно. Большие оконные проемы в прямоугольных зданиях пропускают достаточно освещения.
Рекомендации при строительстве:
- Планировка дома подразумевает минимум перегородок. Вариант – монтаж раздвижных конструкций.
- При наличии двух этажей лестницу стоит выбирать с одним маршем, устанавливают ее возле длинной стены.
Расчет ширины здания производят с учетом следующих показателей. Ширина составляет 8–12 м. До ограждения должно оставаться до 2,5 м. Ширина гаражного бокса – 3,3–3,9 м. Так ширина территории получится 22,5 м. Сюда добавляется проезд на дальнюю часть участка – 2,5 м. Выходит 25 м.
Для квадратного участка
Квадратные площадки дают возможность разместить здание, как захочет хозяин. Наилучший вариант – сделать это по центру территории. В таком случае расстояние до соседних строений будет максимальным, а приусадебный участок станет выглядеть привлекательно.

Квадратная территория дает возможность подобрать любой проект здания. Правильная планировка жилых комнат и расположение дома с учетом сторон света позволят дополнить общую картину. Также можно комфортно установить на этой площади хозяйственные пристройки, мастерскую или гараж.

Благоустройство не составит больших сложностей. В глубине приусадебной территории можно установить беседку или фонтан. Главное, что пространства на квадратном участке достаточно для всего, причем вторичные постройки не загородят фасад, а только дополнят общее впечатление.






























