Слои в составе отмостоки
В структуру отмостки должны входить два основных слоя, чтобы в дальнейшем она могла качественно и долго функционировать.
Первый слой служит основой для целостной конструкции – подстилающий, толщина которого должна составлять порядка 20 см. Этот слой образует плотное и ровное основание для создания отмостки.

Основными материалами в составе слоя-подстилки выступают:
- Песок.
- Щебень.
- Глина.
- Гарцовка.
В случае использования глины, она будет хорошо выполнять задачу по изоляции от воды. Однако, все же стоит заметить, что материал для слоя-подстилки выбирается в зависимости от выше лежащего слоя – покрытия.
Итак, второй слой – наиболее важный, ведь именно от него зависит, насколько вся конструкция будет водонепроницаемой. Чаще всего толщина данного слоя составляет всего от 5 до 10 см, поскольку отмостка не берет на себя слишком большие нагрузки.

Для покрытия отмостки используют такие материалы:
- Тротуарная плитка.
- Асфальтобетон.
- Бетон.
- Камни.
- Глина.
Главным строительным нормативным документом по изготовлению отмостки является «Пособие по проектированию оснований зданий и сооружений» (к СНИП 2.02.01-83), пункты 3.182 и 4.30.
Разновидности асфальта
Помимо того, что асфальт может быть натуральным или искусственным, у него есть и другие подвиды, например, он может быть горячим или холодным. Холодный используется для строительства дорог, для его применения требуется специальная техника. А вот горячий может применяться для ремонта, и особых инструментов здесь не нужно.
Также помимо асфальтобетона есть такая разновидность, как асфальтная крошка. Это уже вторичный материал, получаемый при переработке уже сделанного покрытия. Его качество будет зависеть от того, какой асфальт был сделан изначально. Крошка может пригодиться только для мест с малой нагрузкой.
В зависимости от состава материал может быть 1, 2 или 3 класса. Количество щебня и песка в составе позволяет делить асфальт на дополнительные классы от А до Д. Еще он бывает мелкозернистым, с фракциями размером 5–15 мм, среднезернистым с зернами 25 мм и крупнозернистым (40 мм).
Деформационные швы в конструкции
Данный строительный элемент с помощью деформационных швов делят на части. В зимний период времени, когда температура опускается ниже нуля, начинают работать силы пучения и цельную конструкцию может порвать на части. Когда устроены деформационные швы, этого не должно случиться. Устанавливать их следует на расстоянии каждых 1.7-2 метров. Выполнять такие швы можно при помощи правила и уровня, можно применять также стекло, фанеру или доски. Деформационные швы обязательно стоит делать в углах этого строительного элемента.
Чтобы их выполнить, следует взять строительный уровень, один из концов положить на применяемую опалубку, второй подвести к поверхности фундамента и сделать отметку карандашом горизонт. А поскольку требуется выполнить незначительный уклон и выставить уровень данного шва, то стоит добавить 3 см вверх к отметке горизонт на фундаменте. Второй конец нужно уложить близко к верхнему углу опалубки.
Деформационные швы в отмостке следует делать на бетонной смеси. Выполнить заливу тонкой полоски бетона в пределах опалубки по краям, вставить по отметке на фундаменте маяк
Важно, чтобы маяк выходил из бетона на высоту 5 см. Благодаря использованию герметиков в деформационных швах можно продлить срок службы данного строительного элемента
Определение
Отмостка дома – широкая полоса, выполненная из водонепроницаемых материалов, служащая для защиты основания фундамента. Данная конструкция огибает всю площадь дома, герметично присоединяясь к нему.
Ширина отмостки, по стандартам СНиП, должна быть толщиной не менее 80 см. При этом максимальные значения не уточняются: в этом вопросе владелец может выбирать любые приемлемые для себя значения.

К тому же при возведении данной конструкции нужно учитывать следующие правила:
- Край будущей отмостки не должен быть равным уровню крыши или быть уже ее выступающего элемента;
- Чем шире полоса, тем надежнее будет защита основания дома;
- Обустраивают конструкцию так, чтобы уклон по направлению от дома был 2-3 градуса.
Габариты отмостки должны быть не только правильными, но и удобными, чтобы во время ходьбы люди не задевали стены.
Устройство отмостки вокруг дома по СНиП
При возведении любого здания после завершения всех строительных и наружных отделочных работ необходимо произвести устройство отмостки. Это покрытие на поверхности земли по периметру строения защищает основание от размывания поверхностными осадочными и талыми водами, стекающими с крыши и других надземных частей строения. Конструкция, ширина, высота и уклон покрытия строго регламентируются нормативными документами (СП, СНиП и ГОСТ). Из нашей статьи вы не только узнаете, что такое отмостка, но и после прочтения сможете её выполнить по всем правилам, опираясь на нормы СНиП и СП.
Отмостка фундамента холодным асфальтом
Холодный асфальт для отмостки фундаментов.
Бетонная отмостка потрескалась или отошла от стены здания? Это значит, что она уже не выполняет своих гидроизолирующих функций, не защищает фундамент и скорее всего ее нужно будет удалить, а затем делать новую. Однако стоит себя спросить: почему бетонная отмостка трескается?
Ведь если все дело в том что отмостка уложена на нестабильную основу, если грунт каждую весну или осень проседает, то никакой ремонт и укладка новой бетонной отмостки эту проблему не решит. Даже если с основанием все в порядке, бетонная отмостка часто трескается из-за температурных расширений, попадания воды между фундаментом и отмосткой, и образования льда.
Что же делать, ведь перекладывать отмостку каждый раз как она потрескается дорого и неэффективно?
В таком случае можно использовать уникальный материал – холодный асфальт Мультигрейд. В отличие от бетона и обычного асфальта, холодный асфальт Мультигрейд длительное время сохраняет остаточную пластичность. Именно это свойство позволяет ему не трескаться при значительном проседании почвы, температурных перепадах, других нагрузках.
Как уложить холодный асфальт Мультигрейд? Достаточно выполнить всего несколько простых операций:
1. Выровнять основу.
2. Высыпать холодный асфальт Мультигрейд и разровнять
3. Утрамбовать холодный асфальт подручными средствами или трамбовщиком
4. Поверхность готова к использованию. Можно посыпать холодный асфальт каменной пылью чтобы ускорить процесс схватывания асфальта и улучшить гидроизолирующие свойства.
10 причин чтобы выбрать отмостку из холодного асфальта Мультигрейд:
— Холодному асфальту не страшны температурные перепады и не нужны термошвы.
— легко отремонтировать, достаточно немного расширить яму или трещину. Бетон практически невозможно отремонтировать.
— легко укладывается, ведь для того чтобы уложить холодный асфальт Мультигрейд достаточно его высыпать разровнять и притрамбовать.
— долговечность такой отмостки фундамента – покрытия остаются целыми 10 лет и более
— готов к применению сразу же после укладки, в то время как бетон должен выстаиваться, его нужно увлажнять.
— сам залечивает небольшие повреждения – благодаря остаточной пластичности холодного асфальта Мультигрейд , мелкие трещинки при трамбующем воздействии будут постепенно исчезать, бетон станет растрескиваться все больше
— не надо демонтировать, он прекрасно выполнит роль подложки для нового покрытия.
— Не нужно быть специалистом чтобы уложить холодный асфальт, с этим справится абсолютно любой человек. В то время как неправильно уложенный бетон растрескается и придет в негодность, холодный асфальт Мультигрейд практически невозможно испортить.
— для укладки не требуется сложное оборудование, достаточно подручных средств.
— холодный асфальт не надо готовить и вымешивать, он полностью готов к использованию.
— можно уложить без тщательной подготовки основания, холодный асфальт Мультигрейд менее требовательный к подстилающей поверхности
Стоимость работ по отмостке фундамента холодным асфальтом Мультигрейд минимальна, ведь уложить холодный асфальт может практический любой, для этого не нужны ни специальные инструменты, ни специальные знания.
Расход материала для отмостки фундамента холодным асфальтом: При толщине 4-5 см, расход холодного асфальта составит 3-4 мешка на метр квадратный.
Вы можете подать заявку на покупку холодного асфальта Мультигрейд прямо сейчас. С Вами свяжется наш менеджер и уточнит детали заказа.
Если у Вас возникли какие-то вопросы, свяжитесь с нами по тел. +7 (989) 511-13-46,
или закажите звонок. Мы обязательно Вам перезвоним!
Какой должна быть отмостка в соответствии с нормативами
К устройству отмостки для зданий выдвигается ряд требований, которые необходимо соблюдать согласно законодательству РФ. Данное покрытие должно быть:
водонепроницаемым. Отмостка должна обладать водонепроницаемыми свойствами. Это позволит продлить срок службы фундамента;
с уклоном. При возведении отмостки необходимо выдерживать уклон от стены и от ширины по 1 и 10% соответственно;
с заданной шириной. Ширина покрытия должна быть на 20 см больше свеса кровли здания. При этом для обычного грунта рекомендуется выдерживать показатель от 0,8 до 1,2 метра. Если здание возводится в сложных геологических условиях, то ширина его отмостки должна варьироваться в пределах от 1,5 до 3 метров;
с замкнутым контуром
Важно, чтобы рассматриваемое водонепроницаемое покрытие было сплошным по всему периметру здания, без разрывов в отдельных местах.
Из чего состоит отмостка
Дорожка вокруг здания состоит из двух основополагающих слоев:
Первый слой создает уплотнение и основание для определенного покрытия, например, асфальтовой отмостки. Данный глиняный слой выполняет главную функцию данного сооружения, это гидроизоляция. Слой делают из глины, щебня, гарцовки или песка.
Материал для покрытия отмостки обязан выбираться по водонепроницаемости и трудности размыва осадками. Бывают дорожки вокруг дома из плитки, брусчатки, глины, очень распространены отмостки из асфальтобетона. Устройство любого вида своеобразного водоотвода примерно одинаковое, но есть, конечно, отличительные особенности.

Функции отмостки
Данное водонепроницаемое покрытие выполняет ряд функций, которые важны для строительных объектов:
- защитная. Наружное изделие защищает фундамент от внешних воздействий, которые могут привести к его повреждению, частичному или полному разрушению. Правильно сделанная отмостка выполняет функцию отвода влаги, что позволяет избежать образования микротрещин на поверхности фундамента;
- декоративная. Обычно на данном покрытии выкладывается тротуарная плитка, которая повышает эстетику строения. Без нее сооружение выглядит недооформленным и незаконченным;
- теплоизоляционная. Отмостку нужно обязательно утеплить специальными материалами. В таком случае покрытие защитит фундамент от замерзания и дальнейшего растрескивания.
Виды деформационных швов
Деформационные (компенсационные) швы условно делятся на несколько групп:
• усадочные;
• температурные;
• осадочные;
• сейсмические.

Каждая разновидность имеет конструктивные особенности, поэтому перед выбором варианта следует адекватно оценить следующие факторы:
• климатические особенности региона;
• тип грунта;
• степень подвижности пластов земли;
• используемые материалы для создания отмостки.
Все необходимые данные изымаются из документации изыскательских работ, проводимых перед закладкой фундамента строения. Если дом возведёт много лет назад, лучше заказать геодезические исследования для определения состояния грунта и уровня залегания подземных вод. Это поможет создать надёжную защиту фундаменту, продлив тем самым срок эксплуатации всего строения.
Подготовительные работы
Чтобы сделать отмостку вокруг дома правильно, нужно последовательно выполнить 3 этапа:
- Разметить территорию;
- Выкопать траншею;
- Уложить подстилающий слой.
Для разметки территории лучше использовать деревянные колышки, которыми выделяют весь периметр здания. С помощью рулетки отмеряем расстояние от стены, равное 1 метру, а затем на углах здания вбиваем на полметра вглубь колья. Осталось их соединить веревкой.
Земляные работы сводятся к выкапыванию траншеи, глубина которой зависит от вида будущей отмостки, особенностей грунта и климатических условий вашей местности.

Учитывая то, что фундамент дома и отмостка будут отличаться по тепловому расширению, нужно сделать тепловой зазор, ширина которого должна составлять не менее 2 мм. Достигается он с помощью полиуретановой ленты, которую прокладывают в качестве демпфирующего слоя вдоль стены.
После окончания земляных работ полученную траншею тщательно утрамбовывают. Затем на ее дно укладывают гидроизоляцию и насыпают песок, толщина которого зависит от типа конструкции и глубины траншейного дна. Обязательно утрамбуйте получившийся слой! Чтобы добиться максимального эффекта, внутреннюю конструкцию поливают водой так, чтобы она хорошо уплотнилась. Перед выполнением следующего этапа строительных работ нужно дождаться полного высыхания получившейся «подушки».
Песок засыпают гравием, а затем всю конструкцию выравнивают щебнем, толщина которого может быть незначительная. Такая комбинация позволяет сэкономить количество внешнего слоя материала, так как на внутренней части отмостки не останется пор.
Что такое асфальтобетон
Так как чаще всего отмостки делаются из бетона, иногда считается, что лучше всего «соединить асфальт и бетон», использовав для таких конструкций асфальтобетон. Но чтобы понять, насколько это хорошее решение, сначала нужно понять, чем различаются асфальт и асфальтобетон.
Так, асфальт — это смесь, состоящая из щебня, гравия, песка и другие компонентов, смешанных в установленной ГОСТом пропорции. Обычно этот материал называется натуральным.
Но есть и искусственный асфальт, который и называется асфальтобетоном. Это композитный материал, в состав которого входит вяжущий органический компонент и разные минеральные наполнители. Благодаря этому асфальтобетон значительно прочнее, настолько, что его чаще всего используют для промышленных полотен — автомобильных дорог с большой проходимостью, взлетных полос и т. д.
Получается, асфальтобетон по многим параметрам лучше. Однако, в некоторых случаях тратить деньги на асфальтобетон нецелесообразно, так как он будет слишком хорош для таких небольших полотен, как, например, отмостка жилого дома. Поэтому использовать асфальт будет проще, дешевле, а прочность его будет вполне достаточной.

Нет смысла использовать асфальтобетон для отмостки, обычный асфальт будет ничем не хуже и дешевле
Понятие и особенности
Отмостка — это важная конструктивная часть здания, которая проходит сплошным покрытием по периметру всего строения
Не стоит думать, что устройство отмостки вокруг дома несёт только эстетические функции. Это важная конструктивная часть здания, которая проходит сплошным покрытием по периметру всего строения. Ширина этого изделия нормируется СНиП с маркировкой 2.02.01-83.
Устройство отмостки согласно СП необходимо завершить до наступления холодов. Для выполнения этого покрытия вокруг здания можно использовать несколько видов материалов, используемых для дорожных одежд по ГОСТ:
- бетон – это самый доступный и распространённый материал, который часто используется в индивидуальном строительстве;
- тротуарная плитка;
- асфальт.
Встречается ещё одна разновидность отмостки, называемая скрытая. В этом случае на первый взгляд, кажется, что зелёный газон или тротуарное покрытие примыкает вплотную к дому. Но под ним на небольшой глубине выполняется скрытая бетонная отмостка, которая не хуже поверхностных покрытий защищает основание дома.
Согласно СП основные функции, которые выполняет это изделие вокруг жилого или промышленного здания, следующие:
- Эстетическая роль отмостки бесспорна, ведь благодаря аккуратной полосе покрытия вокруг дома всё строение смотрится аккуратным и законченным.
- Главная роль этой конструктивной части – защитная. Именно поэтому так строго нормируются основные параметры в СП, ГОСТ и СНиП. Благодаря защитному покрытию талые и осадочные воды не могут подмывать грунт под домом и контактировать со строительными конструкциями, медленно разрушая их. Кроме этого, изделие защищает фундамент от разрушения корневой системой деревьев.
- Устройство отмостки помогает сохранить тепло в подвальном помещении и доме. Всё дело в том, что грунт под отмосткой не будет глубоко промерзать, а следовательно, в подвале сохранится тепло, которое не даст полам на первом этаже быть холодными.
- В СП оговаривается защитная функция отмостки от вспучивания породы. Если грунт вокруг здания будет промерзать не так глубоко, как раньше, то силы морозного пучения не станут воздействовать на подземные конструкции основания.
Как правильно залить асфальтобетонную отмостку
Делать отмостку несложно, но естественно нужно знать устройство отмостки из асфальтобетона поэтапно, чтоб потом дорожка вокруг дома была долговечной и выполняла свои функции. Этапы укладки отмостки из асфальтобетона:
- Роем траншею до 30 см. Хорошенько трамбуем почву;
- На дно кладем песок или глину, это своеобразная подложка для того, чтобы сыпучий материал не уходил в почву;
- Выкладываем бордюрные камни по внешнему периметру рва;
- Далее сыпем гравий и щебень, средний по крупности. Толщина слоя должна быть до 15 см.
- Сверху раскатывается асфальт. Толщина этого слоя до 5 см.
Вот и все, устройство отмостки из асфальтобетона вам теперь известно.

А ширина траншеи выбирается с учетом того, чтобы вода попадала не на почву, а на отмостку, но не менее 15-29 см от свеса крыши.
Прочитав данную статью, теперь вы знаете, какой должна быть отмостка из асфальтного бетона, на какие нюансы необходимо обращать внимание и самое главное, что ненужно пренебрегать строительством этого важного внешнего элемента любого здания
Стоимость материалов и 1 м² укладки

Стоимость отмостки здания зависит от множества факторов, большую роль здесь играет выбранная конструкция и объем работ. На цену влияет и стоимость используемых материалов, например, стоимость асфальта за 1 м2 составляет от 2500 руб. и выше, асфальтная кроша немного дешевле, от 1500 до 1800 рублей за 1 м2.
При обустройстве отмостки под ключ в стоимость работ входят подготовка территории к выкапыванию траншеи, разметка, укладывание слоев конструкции, а также непредвиденные расходы (например, если из-за особенностей отмостки или грунта к ней нельзя подъехать вплотную).
Если нет специальных знаний и техники, для монтажа отмостки из асфальта лучше нанять специалистов. Например, в Санкт-Петербурге базовая стоимость работ по монтажу конструкции под ключ варьируется от 1900 руб за 1 м2, также и в Москве, цены практически не отличаются.
В Екатеринбурге монтаж отмостки из асфальта без утепления обойдется минимум в 1600 рублей за 1 м2, а с утеплением – от 2250 рублей. Асфальтирование в Краснодаре варьируется от 1420 рублей и выше.
В каждом случае цена за работу рассчитывается индивидуально. Здесь имеет значение сложность проекта, объем и расположение объекта, а также необходимость утепления, гидроизолирования и пр.
Важная и полезная информация о материалах для строительства и отделки отмостки вокруг дома представлена в этом разделе.
Разновидности материала

Асфальт – это многокомпонентная смесь, состоящая из гравия, щебня, песка и пр. Он классифицируется по различным критериям, например, в зависимости от состава (1-3 класса), от количества щебня и песка (А-Д), а также от размера зерен (мелкозернистый 5-15 мм, среднезернистый 25 мм и крупнозернистый – 40 мм).
Выделяют также горячий и холодный асфальт. Первый применяется для ремонта и не требует наличия специальных инструментов и автотехники. Второй – требует наличие спецтехники, и используется для строительства новых дорог.
Асфальт может быть натуральным, а также искусственным. Одной из последних разновидностей является асфальтобетон, который отличается наиболее высокими прочностными характеристиками. В процессе производства данный материал тщательно уплотняется, что значительно повышает его качественные характеристики.
Еще одна разновидность асфальта – асфальтная крошка. Это вторичный материал, который получается в процессе переработки старого дорожного покрытия. В зависимости от исходного материала, асфальтная крошка различается по качеству в зависимости от содержания там битума, песка, гравия и пр.
Если асфальтобетон используется для строительства автомагистралей, взлетных площадок и прочего, то крошка – для поверхностей с невысокой степенью нагрузки.
Скрытая отмостка вокруг дома
Скрытая отмостка
Идея разбивать газоны прямо у стены постройки пришла к нам из Западной Европы. Поэтому можно воспользоваться опытом зарубежных мастеров по ландшафтному дизайну и скрыть гидроизоляционную защиту простым способом.
После того как убирается верхний плодородный слой почвы по задуманным размерам, пространство засыпают песком (10–15 см), и накрывают мембраной (шипами вниз). Затем полотно снова укрывают песком и щебнем.
Финишным слоем может стать земля, где сеются растения или разноцветная мраморная крошка. Идеи декорирования зависят от фантазии хозяина участка.
Идеи декора можно почерпнуть в интернете на форумах ландшафтного дизайна.
Размеры отмосток по СНиП
Основной параметр – это ширина отмостки. В своде норм и правил указывается, что этот размерный показатель зависит от нескольких факторов, а именно от:
- типа грунта на загородном участке;
- степени просадки почвы;
- ширины выступа карнизного свеса крыши;
- архитектурных особенностей здания.
Что касается зависимости от типа грунта, то здесь необходимо обозначить два вида почвы.
- Это грунты, устойчивые к деформационным нагрузкам. Здесь имеются в виду нагрузки от собственной массы. Степень просадки таких почв не превышает 50 мм.
- Грунты, которые восприимчивы к нагрузкам. Их степень просадки больше 50 мм.
Так вот если на загородном участке расположены грунты первой категории, то ширина отмостки должна быть в пределах 150 см. Если второй категории, то 200 см.
Определить тип грунта можно, передав почву на анализ. Или другой вариант – обратиться в геодезическую службу района.

Минимальная ширина отмостки по СНиП Источник ok.ru
Но есть в СНиПе так называемый минимальный параметр ширины. Он определен диапазоном 80-100 см
При этом важно учитывать ширину свеса крыши дома. То есть первый параметр должен быть больше второго на 20-30 см
Получается так, что стекающая с крыши вода должна попадать на отмостку и по ней удаляться подальше от фундамента здания.
Но при этом в СНиПе указывается о пропорциях отмостки и здания, а также зданиях соседних. Необходимо строго следить за этими пропорциями, потому, к примеру, узкая дорожка вокруг дома может не вписаться в общий экстерьер участка в целом.

Узкая отмостка смотрится некрасиво Источник pinterest.com
Угол наклона отмостки
Переходим к не менее важному параметру – уклону отмостки. Именно от него зависит, как дождевая и такая вода будут отводиться от здания
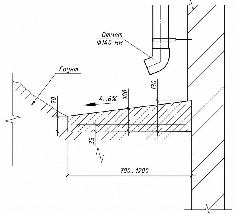
В СНиПе четко обозначено, что минимальный угол наклона должен варьироваться в пределах от 2° до 3°. В своде также обозначен и другой показатель, связанный с уклоном. Это толщина сооружения около фундамента. Она должна быть равна 10-15 см. А толщина внешнего края – 5-10 см.
![]()
Оптимальный угол наклона отмостки Источник cokr54.ru
Но с толщиной отмостки не все так просто, поэтому разберем и этот размер.
Требования к толщине
В основу этого габаритного размера вкладывается марка бетона, используемого для заливки основы под облицовку. Чем она больше, тем меньше толщина. Но необходимо понимать, что бетонный слой – не единственный в конструкции отмостки. Здесь надо будет учитывать дополнительно песчано-гравийную подушку. А она обычно засыпается толщиною 5-15 см в зависимости от типа почвы на загородном участке. Чем мягче грунт, тем толще подушка.
![]()
Толщина окантовки зависит от толщины укладываемых слоев Источник pobudova.in.ua
Размеры отмосток по СНиП
Основной параметр – это ширина отмостки. В своде норм и правил указывается, что этот размерный показатель зависит от нескольких факторов, а именно от:
- типа грунта
на загородном участке;
- степени просадки почвы
- ширины выступа карнизногосвеса крыши ;
- архитектурных особенностей здания
Что касается зависимости от типа грунта, то здесь необходимо обозначить два вида почвы.
- Это грунты, устойчивые к деформационнымнагрузкам . Здесь имеются в виду нагрузки от собственной массы. Степень просадки таких почв не превышает 50 мм.
- Грунты, которые восприимчивы к нагрузкам
. Их степень просадки больше 50 мм.
Так вот если на загородном участке расположены грунты первой категории, то ширина отмостки должна быть в пределах 150 см. Если второй категории, то 200 см.
Определить тип грунта можно, передав почву на анализ. Или другой вариант – обратиться в геодезическую службу района.

Минимальная ширина отмостки по СНиП Источник ok.ru
Но есть в СНиПе так называемый минимальный параметр ширины. Он определен диапазоном 80-100 см
При этом важно учитывать ширину свеса крыши дома. То есть первый параметр должен быть больше второго на 20-30 см
Получается так, что стекающая с крыши вода должна попадать на отмостку и по ней удаляться подальше от фундамента здания.
Но при этом в СНиПе указывается о пропорциях отмостки и здания, а также зданиях соседних. Необходимо строго следить за этими пропорциями, потому, к примеру, узкая дорожка вокруг дома может не вписаться в общий экстерьер участка в целом.

Узкая отмостка смотрится некрасиво Источник pinterest.com
Угол наклона отмостки
Переходим к не менее важному параметру – уклону отмостки. Именно от него зависит, как дождевая и такая вода будут отводиться от здания
В СНиПе четко обозначено, что минимальный угол наклона должен варьироваться в пределах от 2° до 3°. В своде также обозначен и другой показатель, связанный с уклоном. Это толщина сооружения около фундамента. Она должна быть равна 10-15 см. А толщина внешнего края – 5-10 см.

Оптимальный угол наклона отмостки Источник cokr54.ru
Но с толщиной отмостки не все так просто, поэтому разберем и этот размер.
Что представляет собой данный строительный элемент?
Многие до сих пор не знают, что такое отмостка здания. Это полоса из бетона, асфальта и тротуарной плитки вокруг дома. Согласно строительным нормам и правилам она обязательно должна устраиваться, так как служит преградой от попадания в структуру фундамента воды, что в свою очередь может нанести большой вред. Выполняется данный элемент из водонепроницаемого материала вокруг всего здания. Ширина его должна быть не меньше 70 см и обязательно должна быть устроена от стены дома на внешнюю сторону. Вообще этот размер зависит от структуры почвы и длины свесов карнизов. Помимо главной функции – беречь фундамент от воды, отмостка может играть роль пешеходной зоны.
Также присутствие данного элемента дает возможность поддерживать в чистоте лицевую часть здания. Вода, стекающая с крыш, ударяется о землю, тем самым разбрызгивая компоненты по стенам. Картина после этого, конечно, неприглядная, а монтаж полоски по периметру из бетона, асфальта и тротуарной плитки не допускает этого.
Намного больше неприятностей приносит то, что, если нет отмостки у здания, построенного на пучинистых грунтах. Зимой почва, пропитанная водой, вспучивается неравномерно, что плохо влияет на фундамент. В таком случае на площадке по периметру выполняют утепление. Также немалую роль играет данная составляющая, если дом построен на мелкозаглубленном фундаменте. Поскольку подошва его размещается близко к поверхности, то здесь еще легче достигается водой глубина заложения основания. Стоит сказать, что возведение отмостки для любых сооружений, с различными фундаментами обязательно.






























