Особенности составления проектов домов: чертежи как основная часть планирования
Определившись с планировкой дома, нужно мысленно представить жизнь семьи в здании, продумать все элементы, чтобы ничего не упустить. Поэтому не стоит спешить с созданием окончательного варианта планировки дома. Готовые чертежи и планы дома должны быть максимально совершенны, чтобы конечный результат удовлетворял всех домочадцев, а построенное жилище прослужило максимальное количество лет без реконструкции и переделок. Конечный вариант эскиза стоит обсудить на семейном совете, учитывая при этом все детали, вплоть до мелочей.
В первую очередь в схеме дома указывают желаемое количество этажей. Это может быть просторный одноэтажный дом, компактный двухэтажный коттедж или роскошный особняк в два яруса с мансардой. Внутренняя планировка, изображаемая на чертежах зданий, должна включать такие зоны:
- жилые комнаты;
- хозяйственные помещения;
- зоны общего пользования;
- дополнительные пристройки.
Одноэтажный дом разграничивают на зоны с помощью перегородок, а также размещая помещения однотипной функциональности в одном крыле. В двухэтажных коттеджах спальни, гостевые и детские комнаты традиционно располагаются на втором этаже, а на первом находятся хозяйственные и служебные помещения общего пользования.
Общие принципы построения
Для постройки панельного, деревянного дома и любых других зданий важна разработка проекта. В типовом проекте немало документов, но будущих хозяев обычно интересуют чертежи многоэтажных и одноэтажных жилых зданий в разрезах, где можно увидеть результат процесса постройки.
В чертежи обычно входят фасады и разрезы:
- Фасад представляет собой изображение внешнего вида дома. В основном в таком чертеже присутствуют несущие элементы и детали отделки, воссоздающие точный вид здания;
- Разрез здания – графическое изображение коттеджа с рассечением по плану секущими плоскостями. На нем зафиксированы объекты, сквозь которые проходит секущая площадь и располагающиеся за ней.
Чертеж фасада позволяет представить, как дом будет смотреться внешне, здание в разрезе показывает внутреннее устройство комнат.
В проектных документах должно быть минимум два чертежа. В одном представлен поперечный разрез, в другом – продольный разрез. При сложной конфигурации постройки документов больше.

При создании чертежей высотных построек, частных домов, производственных и административных зданий требуется обозначить разрезы. Для этого применяются тонкие вертикальные и горизонтальные линии. Чаще всего их делают по стенам лестничной клетки. Алгоритм вычерчивания разреза:
- Вначале для главных несущих панелей и колонн (если они есть) нанести и указать вертикальные координационные оси;
- После сделать горизонтальные линии уровней, находящиеся перпендикулярно с координационными осями. Это линии тротуара или земли, примерного верха карниза, перекрытия чердака, полов на каждом этаже;
- Затем тонкими линями нанести контуры внутренних и наружных стен, перегородок. Зафиксировать высоту конька крыши, перекрытий между этажами и чердаком. Нужно нарисовать карниз стены, скат крыши, выносы цокольного этажа;
- Наметить дверные и оконные проемы в перегородках, наружных и внутренних стенах, остальные элементы постройки;
- Далее наносят необходимые размеры и отметки. Нужно начертить размерные и выносные линии и знаки, которые позволят сделать простановку высотных отметок, провести маркировку координационной оси;
- Сделать завершающее обведение сечей, поставить высотные отметки и разрезы, записать разъясняющие слова, названия, убрать ненужные линии.
Вам будет интересно: Ситуационный план земельного участка: как получить, составить самому
Требования к чертежам

Вертикальная плоскость сечения передает точные сведения о размерах элемента. Важными отметками являются указания расстояния от потолка до пола.
- Высота потолков стандартных жилых помещений – не больше 3 м;
- Промышленного каркасного здания будет выше – от 3,3 м;
- Помимо стен и их отверстий на чертеже есть перила, локализация лестниц, их высота;
- Для окон в стене указывается высота подоконника. Для здания с мансардой она равна 80 см, от потолка до окна – не больше 30 см.
Дом в разрезе по лестнице чертится после осуществления всех расчетов при проектировании. Сначала при построении и вычерчивании разреза здания нужно проведение координационных осей, после вычерчивания стен, отметка уровней лестничных площадок горизонтальными линиями.
После этого следует от любой горизонтальной линии отложить размер ширины площадки (1410 мм), через каждые 300 мм отметить точки, провести сквозь них вертикальные линии для разбивки ступеней. Затем к площадке нижнего этажа отложить 300 мм (это ширина ступени), соединить точку с последней точкой уровня промежуточной площадки, находящейся выше. Линия нужно чертить наклонную прямую.
Прямая пересечется с вертикальными линиями несколько раз. Сквозь них чертятся горизонтальные (проступи) и вертикальные (подступенки) линии. Остальные ступени и марши разбиваются по такому же алгоритму.
После на разрезе чертят лестничные площадки, марши, контуры сечений ступеней, стен, площадок. Происходит их обводка основными линиями
Важно понимать, что по лестнице плоскость чертится по маршам, располагающимся к смотрящему чертеж человеку ближе других
Разрез многоэтажного дома с подвалом
Министерство регионального развития, строительства и ЖКХ
4 Приказом Федерального агентства по техническому регулированию и метрологии от 11 октября 2012 г. N 485-ст введен в действие в качестве национального стандарта Российской Федерации с 1 мая 2013 г.
5 ВЗАМЕН ГОСТ 21.501-93
Информация о введении в действие (прекращении действия) настоящего стандарта публикуется в ежемесячно издаваемом указателе «Национальные стандарты».
Информация об изменениях к настоящему стандарту публикуется в ежегодно издаваемом информационном указателе «Национальные стандарты», а текст изменений и поправок — в ежемесячно издаваемом информационном указателе «Национальные стандарты». В случае пересмотра или отмены настоящего стандарта соответствующая информация будет опубликована в ежемесячно издаваемом информационном указателе «Национальные стандарты»
Как оформить разрез здания
Разрезы изображаются в виде сечения вертикальной плоскостью, проходящей, как правило, через оконные и дверные проемы. Разрезы выполняются так, чтобы с достаточной ясностью выявить объемно-пространственное и конструктивное решение здания, высокую координацию всех его элементов. Различаются продольный и поперечный разрезы, в случае необходимости выполняют местные разрезы с целью выявления особенностей архитектурно-инженерного решения проектируемого объекта. Разрезы выполняют между конструктивными элементами, последние можно рассекать поперек (кроме колонн). Направление взгляда для изображения разрезов следует принимать по плану снизу вверх и справа налево. В названиях чертежей пишут: «Разрез 1—1», «Разрез 2—2». На разрезах показывают все конструктивные элементы, расположенные в пределах секущей плоскости и непосредственно за ней
(рис. 1).
Рис 1. Пример оформления разреза здания. Все конструктивные элементы обводят основной линией.На чертежах разрезов наносят: — координационные оси, — расстояние между ними и привязку наружных стен к крайним координационным осям, — вертикальные цепочки размеров, включающие толщину перекрытий и высот помещений, — вертикальные размеры оконных проемов и т.д., — горизонтальные цепочки размеров, — отметки уровня чистого пола помещений и низа настилов перекрытий, наружных элементов стен, земли, — состав перекрытий и покрытий с указанием названий, составляющих их конструкций и материалов.Назначение архитектурных разрезов — изображение композиционно- пространственного решения здания и его связи с окружающей средой. Поэтому элементы, попавшие в сечение, в разрезах можно показать условно. В этом случае плоскости сечений чаще всего заливают черной тушью. Однако если планы решены в другой технике (разведенная тушь, цвет и т.д.), то при выполнении используют те же приемы, что и при выполнении планов. Все, что находится за плоскостью сечения — окна, двери, элементы внутренней отделки, оборудование и мебель — обводят тонкой черной или цветной линией в соответствии со стилем выполнения планов. Если разрезы выполняются в крупном масштабе, то плоскость сечения оставляют белой, а интерьер, как главный элемент разреза, выполняют в черно-белой графике (рис. 2) однотонной отмывкой или полихромно, применяя акварель или, что более современно, темперу или гуашь. При этом изображение интерьера может быть и плоскостным, и объемным.
Рис. 2. Пример оформления разреза здания.
Рис. 3. Пример оформления разреза здания коттеджа.
Рис. 4. Архитектурный разрез здания.
распечатать
Структура проекта дома: план здания, чертежи и размеры
Перед тем как самому сделать проект дома, нужно иметь четкое представление о том, что это за документ и из каких разделов он состоит. Во-первых, это главный помощник и путеводитель на этапе строительстве, который поможет создать дом по всем правилам, сделать его надежным, комфортным и функциональным, а главное – безопасным для проживания.
![]()
Пример проекта двухэтажного дома с гаражом на две машины.
Обратите внимание! Строить дом без проекта – это огромный риск. Не имея исчерпывающей информации о будущем доме, нельзя проконтролировать все расходы, рассчитать необходимое количество материалов и размеры помещений
Хаотичная стройка может иметь плачевные последствия в виде проседания фундамента, неудобных лестниц и маленьких комнат.
Во-вторых, проект – это документ, обеспечивающий контроль за качеством стройки и расходом материалов. При отсутствии сметной документации не только качество будет низким, но и сама постройка будет неликвидной. Оформить такой дом как недвижимость просто невозможно.
Проект дома состоит из двух основных частей:
- архитектурно-строительной, которая включает архитектурные чертежи фасадов и детальные строительные схемы с указанием размеров и материалов;
- инженерно-конструкторской, как правило, состоящей из чертежей водопровода, канализации, электрики, отопительной и вентиляционной систем.
Классический вариант проекта с чертежами двухэтажного дома включает такие разделы:
- архитектурный, детализированный по этажам;
- конструктивный с подробной планировкой дома;
- план монтажа электропроводки;
- водопроводную и канализационную схему;
- план монтажа отопления и вентиляционной системы;
- проект газовой установки;
- паспорт проекта и объяснительную записку.
![]()
Основными частями проекта дома являются архитектурно-строительная и инженерно-конструкторская.
На заметку! Чертежи можно изготовить вручную или воспользоваться специальными компьютерными программами для онлайн-проектирования дома.
Как делать проект: подготовительные этапы создания чертежа
Перед тем как сделать чертеж частного дома, нужно определиться с тем, каково будет его прямое предназначение: будет ли он служить загородным местом отдыха в летнее время или жильем для круглогодичного обитания всей семьи. Количество домочадцев тоже необходимо иметь в виду. При этом нужно учесть образ жизни членов семьи, их вкусы, предпочтения и увлечения.

Перед началом создания чертежа нужно определиться с количеством жильцов дома
Если будущие обитатели дома – приверженцы тихого образа жизни, то здание нужно размещать на территории, которая находится подальше от проезжей части и соседних участков. Лучше всего – в глубине сада. Для открытых, общительных людей дом можно построить в начале участка, выставив напоказ фасад коттеджа и красивый ландшафт перед ним. В техническом плане особенно важны геодезические данные, полученные путем исследования территории. Они укажут на особенности поверхности, состав грунта и наличие наклонов, что позволит создать план местности.
Чтобы проектировка дома была упорядочена, процесс условно разделяют на этапы, которые потом отображаются в следующих разделах готового проекта дома:
- эскизном;
- архитектурном;
- конструктивном;
- инженерно-техническом;
- дизайнерском или отделочном.
Определившись с месторасположением и предназначением будущего жилища, можно приступать к проектировке дома. С этой целью делают первоначальные наброски. При наличии элементарных художественных навыков хозяева смогут сделать это самостоятельно, даже без специальной компьютерной программы для постройки дома. На базе набросков составляется основной эскиз. В соответствии с ним подготавливают все остальные подробные чертежи и определяются с планировкой будущей постройки.
Что необходимо учитывать при составлении схемы дома
Уже на этапе составления эскиза нужно четко определиться с количеством этажей, типом кровли, внешним видом фасада и фронтальных частей дома, вплоть до количества окон, балконов, наличия террасы или мансарды. Эскизный проект также предполагает наброски вида здания в продольном и поперечном разрезах, где указываются особенности конструкции и материалы, из которых предполагается возводить дом.

Пример чертежа одноэтажного дома из кирпича с мансардным этажом
Перед тем как нарисовать план дома, необходимо определиться с расположением участка и изучить ориентацию относительно сторон света. Исходя из этих данных, определяется месторасположение комнат. Их количество зависит от того, сколько людей будет жить в здании и как часто будут приезжать гости на длительное время. Размещение помещений и функциональное предназначение каждого из них также является важным элементом.
Далее требуется определить, какие конкретно комнаты будут отведены членам семьи, а какие – гостям и работникам, если предполагается формирование определенного штата. Не следует забывать о планировке помещений, в которых будет собираться вся семья, – это столовая, зал или гостиная.
Важно учесть предпочтения и увлечения обитателей дома, чтобы выяснить необходимость включения в планировку тренажерного зала, бассейна или сауны, зимнего сада либо оранжереи, библиотеки с кабинетом или просторной мастерской

При составление эскизного проекта дома нужно учитывать все пожелания будущих жильцов
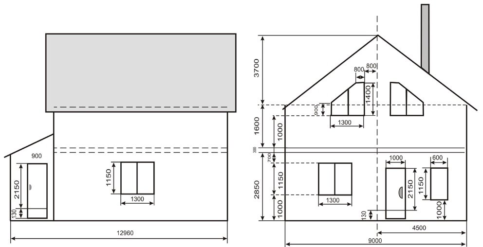
Чертежи дома в сечении и изображение фасадов с разных сторон
Нарисовать проект дома невозможно без изображения всех фасадов, которые наглядно демонстрируют внешнее состояние лицевого входа, вид сзади и по сторонам. Таким образом, должно быть четыре листа, где необходимо нарисовать чертежи, изображающие:
- фронтальный фасад;
- боковой фасад №1 (правая сторона);
- боковой фасад №2 (левая сторона);
- фасад задней части дома.
Чертеж фасада дома фактически отображает первоначальные наброски и эскизный план здания. Его можно легко создать с помощью специальных компьютерных программ, поэтому, перед тем как нарисовать проект дома, необходимо тщательно все обдумать, проконсультироваться со специалистами разных профилей в строительстве и согласовать все детали с членами семьи. Окончательный вариант должен нравиться всем домочадцам.
После чертежей фасадов отдельным списком в таблице указывается спецификация элементов столярных изделий – дверей и окон, причем учитывается способ их открытия. Для каждого изделия обозначены четкие формы, параметры, определено наличие и количество стекол. Дом в два этажа может иметь до трех десятков наименований такой продукции.
![]()
Чертежи с изображением фасада двухэтажного дома с разных сторон.
На заметку! Создать проект небольшого двухэтажного дома можно по аналогии с чертежами квартир. За основу первого этажа берется план двухкомнатной квартиры, а второй этаж включает спальню, две гостевых комнаты и дополнительный санузел.
Чертежи разрезов зданий
При проектировании различных зданий и сооружений, на начальной его стадии, разработчики составляют контурные или архитектурные их разрезы, необходимые для того, чтобы указать, как именно расположены друг относительно друга различные элементы их интерьеров, а также для того, чтобы выявить внутренний вид помещений. Согласно установленным правилам, на них не изображаются конструкции стропил, перекрытий, фундаментов, а также некоторых других элементов. При этом, однако, должны быть обязательно проставлены нужные для проработки фасада высотные отметки и необходимые размеры.

Архитектурный разрез здания
Наряду с развертками потолков и стен архитектурные разрезы применяются также для того, чтобы осуществлять проектирование интерьеров зданий (к примеру, спортивных и торговых помещений, фойе, зрительных залов), а также внутренних отделочных работ в них. Кроме того, архитектурные разрезы нужны и тогда, когда составляются проекты реконструкции зданий, являющихся архитектурными памятниками, при выполнении в них различных восстановительных и отделочных работ. Следует заметить, что при строительстве архитектурные разрезы не находят применения, поскольку на них не отображены многие важнейшие конструктивные элементы зданий и сооружений.
Чертежи фасадов зданий

Вид на здание спереди (со стороны улицы) называют главным фасадом, вид сзади (со стороны двора) — дворовым, а виды слева или справа торцовым. В проектах зданий наименования фасадов увязывают с марками разбивочных осей, указывая в названии фасада левую и правую крайние разбивочные оси или марку той оси, которая расположена в изображаемой на фасаде стене, например фасад 1
—8, ФасадБ —А, Фасад по осиА, Фасад по ОСИ1 II т. д.
В чертежах взаимозеркальных фасадов проставляют крайние оси того и другого фасада, например, фасад А
—Б ИБ —А. По чертежам фасадов судят о внешнем облике зданий, о расположении и форме некоторых конструктивных и архитектурных элементов: окон, дверей, балконов, наличников, сандриков, пилястр, колонн и т. п.
На чертежах фасадов крупноблочных и панельных зданий показывают разрезку (членение) стен на панели или блоки. Если на таком фасаде указаны марки элементов, его называют монтажным.
В проектах зданий, где конструктивные чертежи выделены в отдельную часть, марки элементов фасадов показывают на монтажных схемах (см. рис. 57). В зависимости от стадии проектирования, назначения и величины здания чертежи фасадов зданий выполняют в масштабах от 1 :50 до 1 :500. Сложные участки фасадов зданий вычерчивают в масштабе 1 :50 или 1 :100 на чертежах элементов фасадов. На основном чертеже фасада при этом должна быть ссылка на номер листа, где изображен элемент фасада. Так, например, на рис. 37 приведен элемент фасада 1 производственного здания, фасад Б
—А Которого изображен на рис. 36.
В свою очередь отдельные участки элемента фасада могут изображаться в более крупном масштабе как чертежи деталей. На рис. 38 показаны детали 1, 2, 3 и 4
Фасада того же здания.
Видимые контуры на чертежах фасадов обводят тонкими линиями. Так, контуры здания и проемов имеют толщину 0,3—0,4 Мм,
Контуры оконных переплетов, членения стен на панели и блоки, контуры поясков, карнизов и других архитектурных элементов стен обводят линиями в два раза тоньше контуров здания и проемов. Линия контура земли должна быть толстой, она должна выходить за пределы фасада на 20—30Мм. Толщина этой линии 1 —1,5Мм. Степень проработки отдельных деталей фасада зависит от масштаба чертежа. Так, например, детали оконных переплетов, дверей и ворот показывают на фасадах, выполненных в масштабах 1:100 и крупнее (см. рис. 34). При более мелких масштабах вычерчивают только контуры створок или проемов (см. рис. 35).
Размеры на чертежах фасадов обычно не наносят, показывают только разбивочные оси у углов здания, у деформационных швов и в местах перепада высот. За пределами чертежа справа или слева от него выносят и надписывают высотные отметки уровня земли, пола первого этажа, цоколя, низа и верха проемов, карниза и поясков, верха кровли и т. п. На чертежах панельных зданий указывают не отметки проемов, а отметки горизонтальных швов панелей.
Для лучшего выявления объемной композиции здания на чертежах фасадов строят собственные и падающие тени (см. рис. 34). При этом направление лучей света принимается таким, чтобы их проекции располагались под углом 45° к оси координат. Это позволяет показать истинные размеры выступов и впадин фасада в масштабе чертежа.
Отдельные чертежи фасадов, выполняемые в стадии проектного задания, отмывают сухой тушью или акварельными красками. Для большей выразительности чертежа помимо здания показывают ландшафт или городскую застройку. Такие чертежи принято называть архитектурными фасадами.
В стадии проектного задания здания могут изображаться и в перспективе. Эти чертежи дают более наглядное представление об архитектурно-художественной композиции проектируемых зданий.
Компьютерные программы для проектирования домов
Проектировать дом можно с помощью приложений:
- Google SketchUp;
- VisiCon;
- FloorPlan 3D;
- CyberMotion 3D-Designer 13.0;
- Home Plan Pro;
- AutoCad;
- Дом-3D;
- Envisioneer Express.
Данные инструменты предназначены для моделирования трехмерной архитектуры, в т. ч. одноэтажных и двухэтажных домов, дач, коттеджей. В качестве дополнительной функции программы позволяют производить виртуальную расстановку предметов мебели. Специальные плагины и расширения данных приложений осуществляют визуализацию объектов. Благодаря данной опции можно смотреть, как строения выглядят сверху, в разрезе, под углом. Кроме того, моделирующие приложения позволяют работать со слоями.
Модели можно в любой момент отредактировать, а также покрутить вокруг своей оси или увеличить для просмотра наименьших деталей. Для хранения разных проектов предусмотрены библиотеки, в которых можно быстро и легко просматривать объекты. Современные программы позволяют создавать также динамические элементы. В интернете доступны платные и бесплатные приложения и онлайн-ресурсы для проверки особенностей конструкций при максимально реалистичных параметрах.
Необходимость в проекте и чертежах дома
Согласно законодательству, возводить частные дома можно как с проектом, так и без него. Однако опыт компетентных в этой сфере людей показывает, что наличие проекта имеет определяющее значение на этапе строительства. Без него работа усложняется, и в алгоритме действий и их точности появляются сбои. Еще сложнее становится, если нет схемы строения и расходной сметы. Более того, проект и эскизы, даже созданные самостоятельно, позволят сэкономить на услугах инженеров и архитекторов. Разобраться во всех аспектах не выйдет, но освоить азы проектирования простых домов под силу всем. Разработаны также специальные программы для составления планов.
Проекты помогают рассчитать расход материалов, описать параметры комнат и зданий, выбрать идеальное место для дверей, окон и балконов, определиться с предназначением помещений и функционалом построек. Подробно расписанный план нужен для расчета конструкции фундамента и кровли. Он играет ключевую роль для прокладки и выбора местонахождения:
- отопления;
- водопровода;
- септика;
- выгребной ямы;
- вентиляции.

Планировка с размерами
Описание архитектурных элементов: чертежа здания, планировки жилых, хозяйственных помещений, обозначения окон, дверей.

- Расчёт конструкции фундамента, коробки, кровли, схематичное изображение чертежей с разметками.
- Электрическое оснащение с подробным планом подключения дома к энергосети и схемой разводки розеток.

Инженерные сообщения: вентиляция, газ, септик, водопровод, отопление.
Как показано выше, в структуру схемы входит план дома с мансардой, в котором указывается площадь, внутренняя расположенность помещений основного строения, с нанесением на схему дверей, перегородок, лестницы и окон.
Чертеж и планировка всех этажей здания с мансардой
Получается, что, отказываясь от услуг архитектора, вся составляющая документации проекта ложится на владельца жилья. Ведь планировка квартир отдельно от планового расчета существовать не может. Все же под руководством проектировщика, хозяин владения, может начертить план сам.
Элементы здания
Чертёж – основа строительной документации. От того как выполнен чертёж зависит ход строительства здания и конечный результат. Это отображение не только здания, но и всех необходимых сопровождающих коммуникаций (водоснабжение, канализация, отопление). Расход материалов и конечная стоимость постройки, все перечисленные факторы зависят от чертежа.
Чертежи фундамента
Основа здания — это фундамент. Провести расчет подземных и наземных частей фундамента, выбрать материалы для самого фундамента и гидроизоляции поможет чертёж. Он же будет основным документом для строителей, при возведении здания в целом и его отдельных элементов.

Помимо чертежа делается расчет сметной стоимости, в который включается стоимость материалов и работ.
Схема перекрытия этажей
Способы выполнения перекрытий между этажами, а также чердачных помещений отображаются в чертежах. Размеры, расход материалов, основные элементы конструкций. В зависимости от вида применяемых материалов определяется и способ выполнения перекрытий.
Лестницы
Могут быть устроены как внутри, так и снаружи здания. На чертежах отображается размер, «шаг» лестницы и указываются особенности её монтажа, как и применение материалов.

Вентиляционные каналы и дымоходы
Дымоходы и вентканалы, что также отображается на фасаде дома. Система вентиляции должна быть спроектирована таким образом, чтобы обеспечивать эффективный воздухообмен в помещениях. Дымоходы, включаются в состав системы отопления.






























